CAD频道
CAD图库
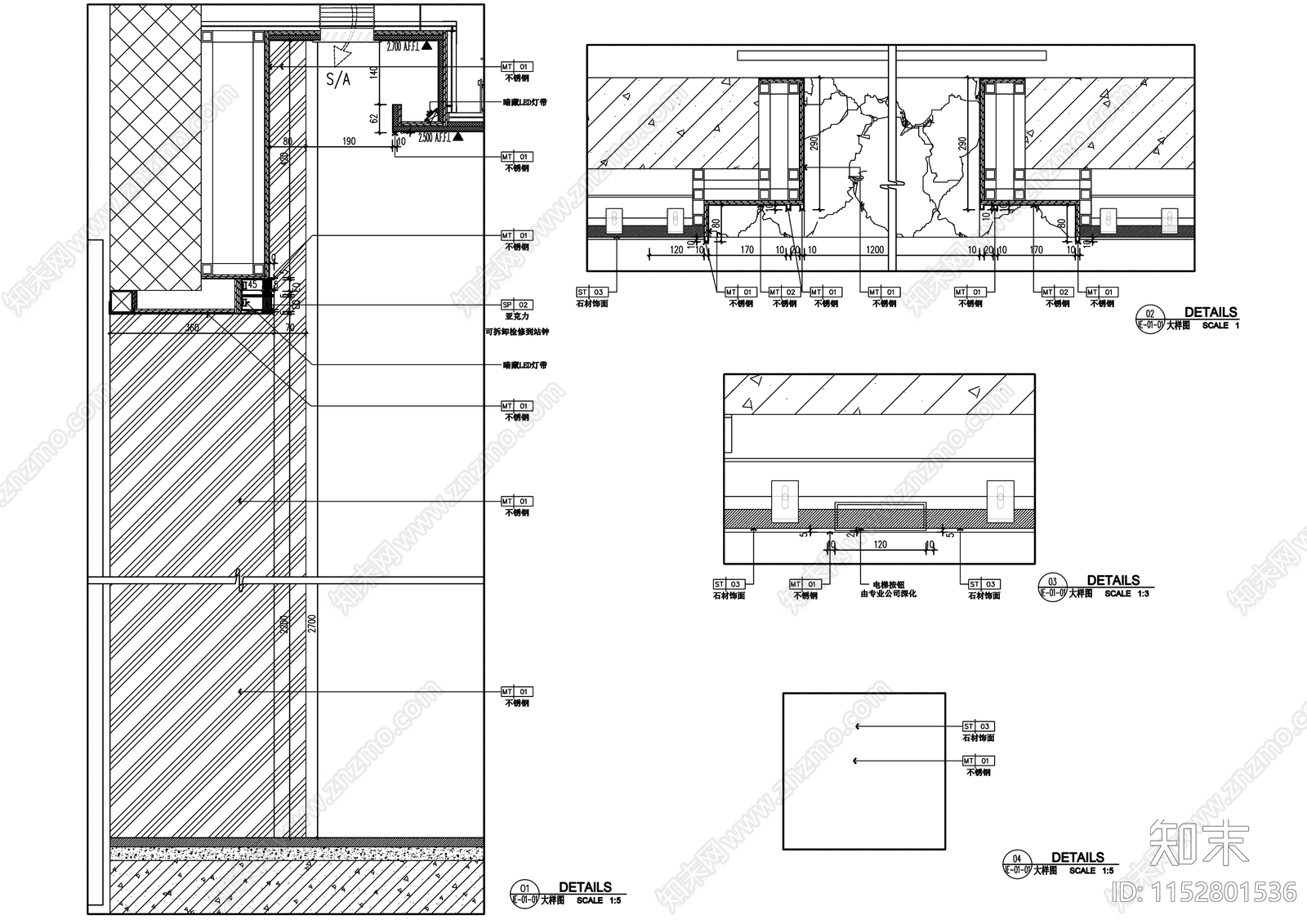
电梯门套节点 施工图 通用节点
1/
2
Previous
Next
电梯门套节点CAD下载
ID: 1152801536
复制
上传作者
隔壁老W
上传时间
2024-01-21
文件大小
0.79M
设计风格:
--
CAD版本:
CAD2010
包含文件:
CAD
授权
独家
立即下载
收藏
分享
举报
相关推荐
综合
室内工艺节点
其他室内工艺节点