1/6


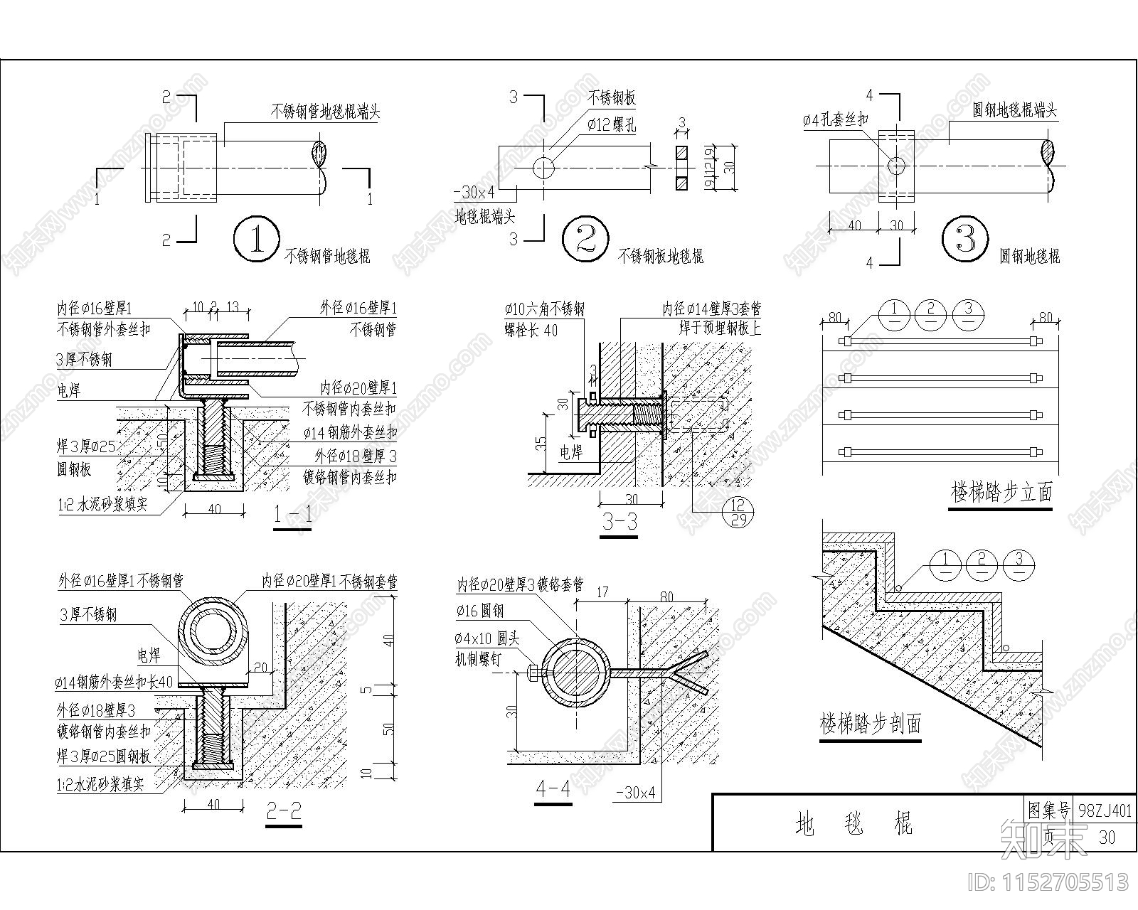
各种楼梯扶手做法大样图CAD下载
ID: 1152705513
复制
上传作者
笑傲容颜
笑傲容颜上传时间2024-01-19
文件大小0.8M
设计风格:--
CAD版本:CAD2013
包含文件:CAD
授权独家
立即下载
收藏
分享
举报
相关推荐
综合
节点详图
楼梯节点
吊顶节点
墙面节点
地面节点
门节点
其他节点详图
建筑工程节点
景观小品
水景


笑傲容颜上传时间2024-01-19
文件大小0.8M
设计风格:--
CAD版本:CAD2013
包含文件:CAD
授权独家