CAD频道
CAD图库
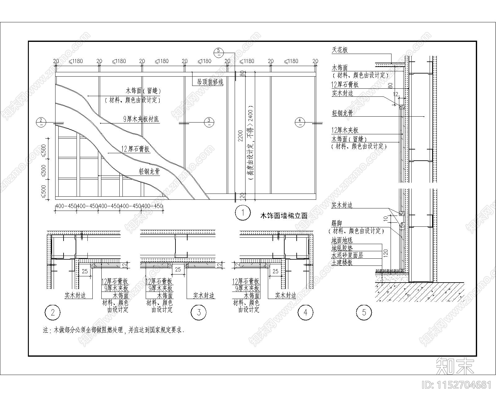
木饰面护壁墙裙大样图 施工图 墙面通用节点
1/
8
Previous
Next
木饰面护壁墙裙大样图CAD下载
ID: 1152704681
复制
上传作者
笑傲容颜
上传时间
2024-01-19
文件大小
1.01M
设计风格:
--
CAD版本:
CAD2013
包含文件:
CAD
授权
独家
立即下载
收藏
分享
举报
相关推荐
综合
墙面节点
背景墙节点
轻钢龙骨隔墙
壁龛节点
隔音墙节点