CAD频道
CAD图库
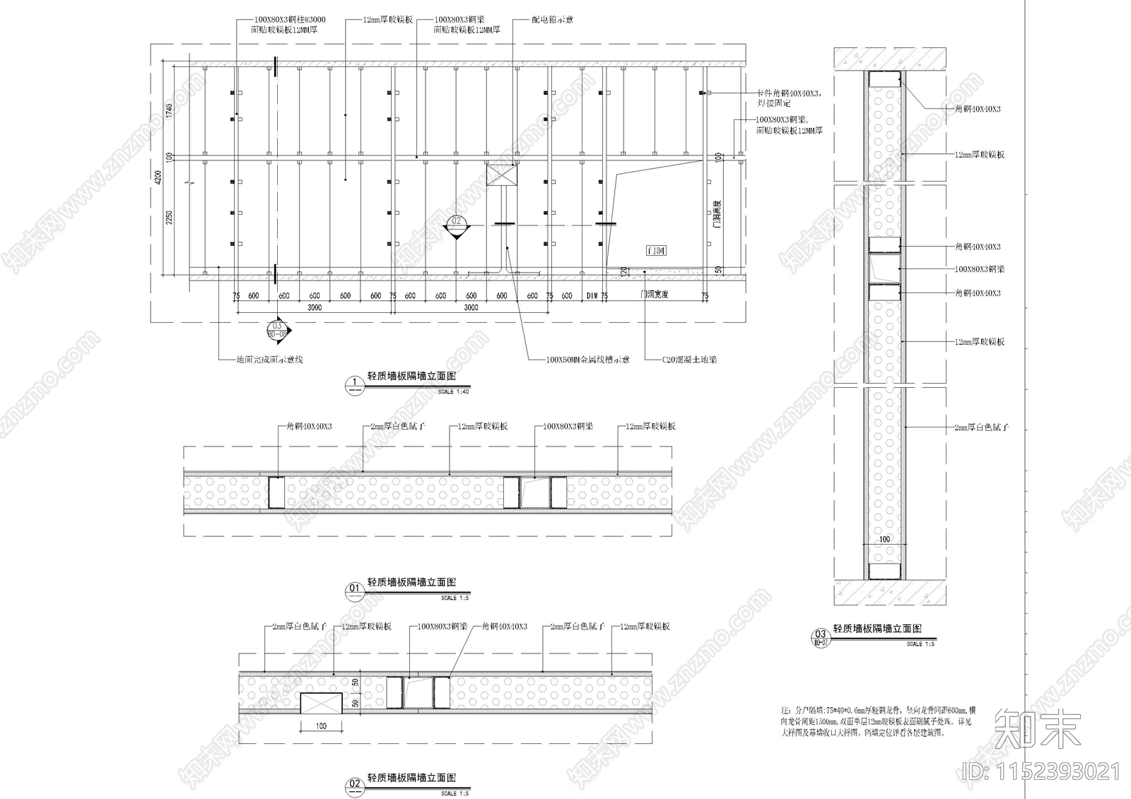
轻钢龙骨办公墙身通用节点大样图 施工图 墙面节点
1/
3
Previous
Next
轻钢龙骨办公墙身通用节点大样图CAD下载
ID: 1152393021
复制
上传作者
xin图
上传时间
2024-01-15
文件大小
4.04M
设计风格:
--
CAD版本:
CAD2004
包含文件:
CAD
授权
普通
立即下载
收藏
分享
举报
相关推荐
综合
墙面节点
轻钢龙骨隔墙
背景墙节点
壁龛节点
隔音墙节点