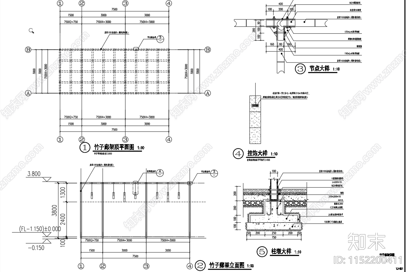
竹子廊架施工图下载【ID:1152200411】

竹子廊架CAD下载

ID: 1152200411
复制
上传作者
介末量生子介末量生子

上传时间2024-01-11

文件大小0.81M

设计风格:现代简约

CAD版本:CAD2013

包含文件:CAD

授权普通

立即下载
收藏
分享
举报
相关推荐
综合
景观小品
廊架
亭子
景墙
综合景观小品
雨棚
围墙
挡土墙
入口
景观坐凳