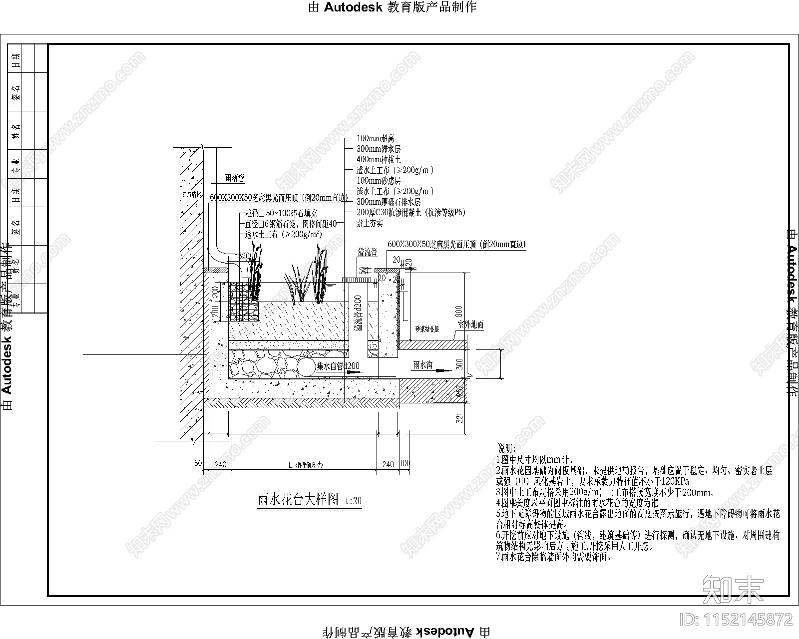
雨水花台大样图施工图下载【ID:1152145872】

雨水花台大样图CAD下载

ID: 1152145872
复制
上传作者
设计师-休大设计师-休大

上传时间2024-01-11

文件大小0.12M

设计风格:--

CAD版本:CAD2014

包含文件:CAD

授权独家

立即下载
收藏
分享
举报
相关推荐
综合
地面节点
地台节点
地坪漆
地毯节点
路面节点
门槛石节点
木地板
花岗岩
地面综合节点