1/3


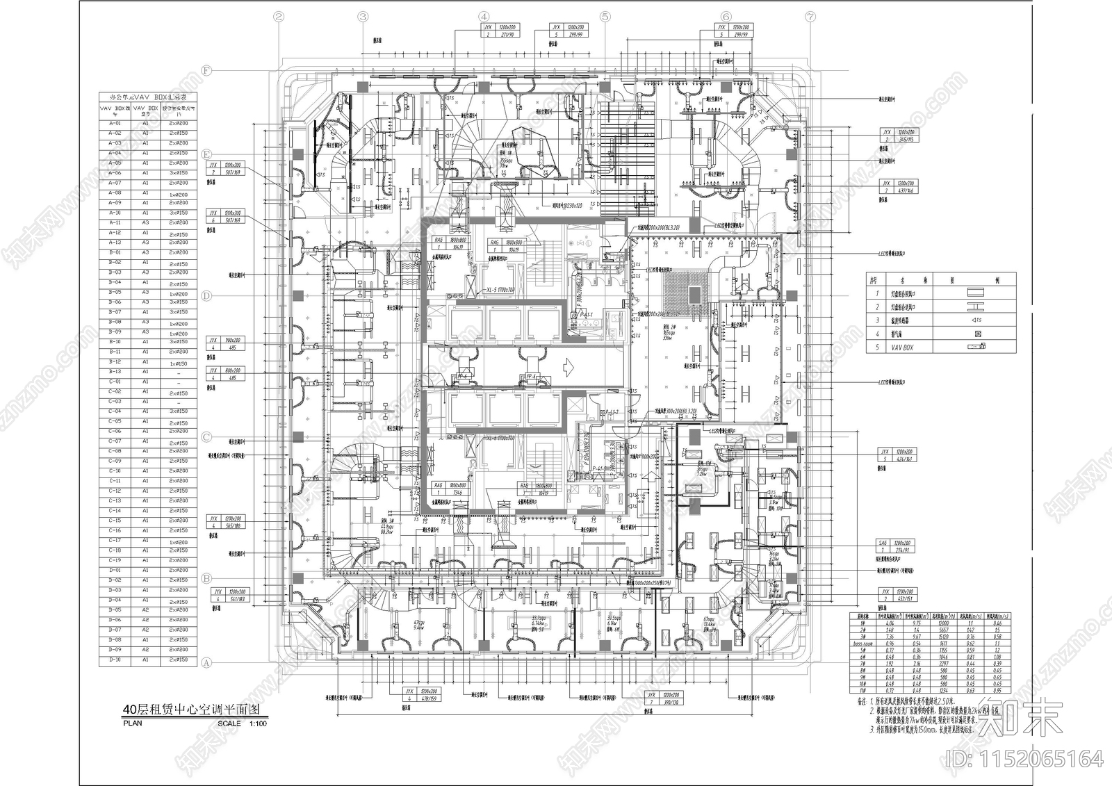
整层办公室建筑暖通CAD下载
ID: 1152065164
复制
上传作者
小趴菜园
小趴菜园上传时间2024-01-10
文件大小6.06M
设计风格:--
CAD版本:CAD2004
包含文件:CAD
授权独家
立即下载
收藏
分享
举报
相关推荐
综合
机电工程
暖通空调
给排水图
水处理
电气图
电气工程节点
消防设施
机械设备
其他机电图纸
建筑给排水


小趴菜园上传时间2024-01-10
文件大小6.06M
设计风格:--
CAD版本:CAD2004
包含文件:CAD
授权独家