1/9


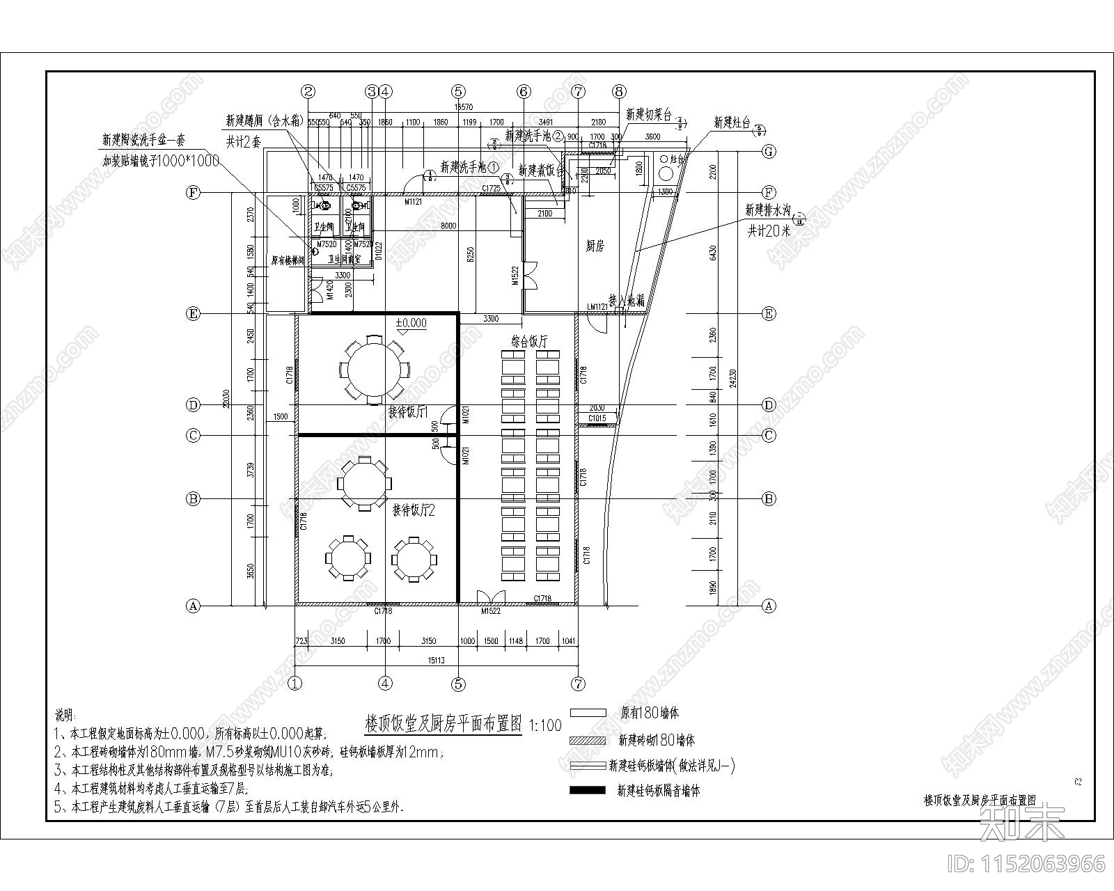
口腔医院楼顶饭堂及厨房建筑改造CAD下载
ID: 1152063966
复制
上传作者
笑傲容颜
笑傲容颜上传时间2024-01-10
文件大小4.6M
设计风格:现代简约
CAD版本:CAD2013
包含文件:CAD
授权独家
立即下载
收藏
分享
举报
相关推荐
综合
建筑
其他建筑
居住建筑
办公工业建筑
商业建筑
酒店民宿建筑
交通建筑
规划设计
古建
教育建筑


笑傲容颜上传时间2024-01-10
文件大小4.6M
设计风格:现代简约
CAD版本:CAD2013
包含文件:CAD
授权独家