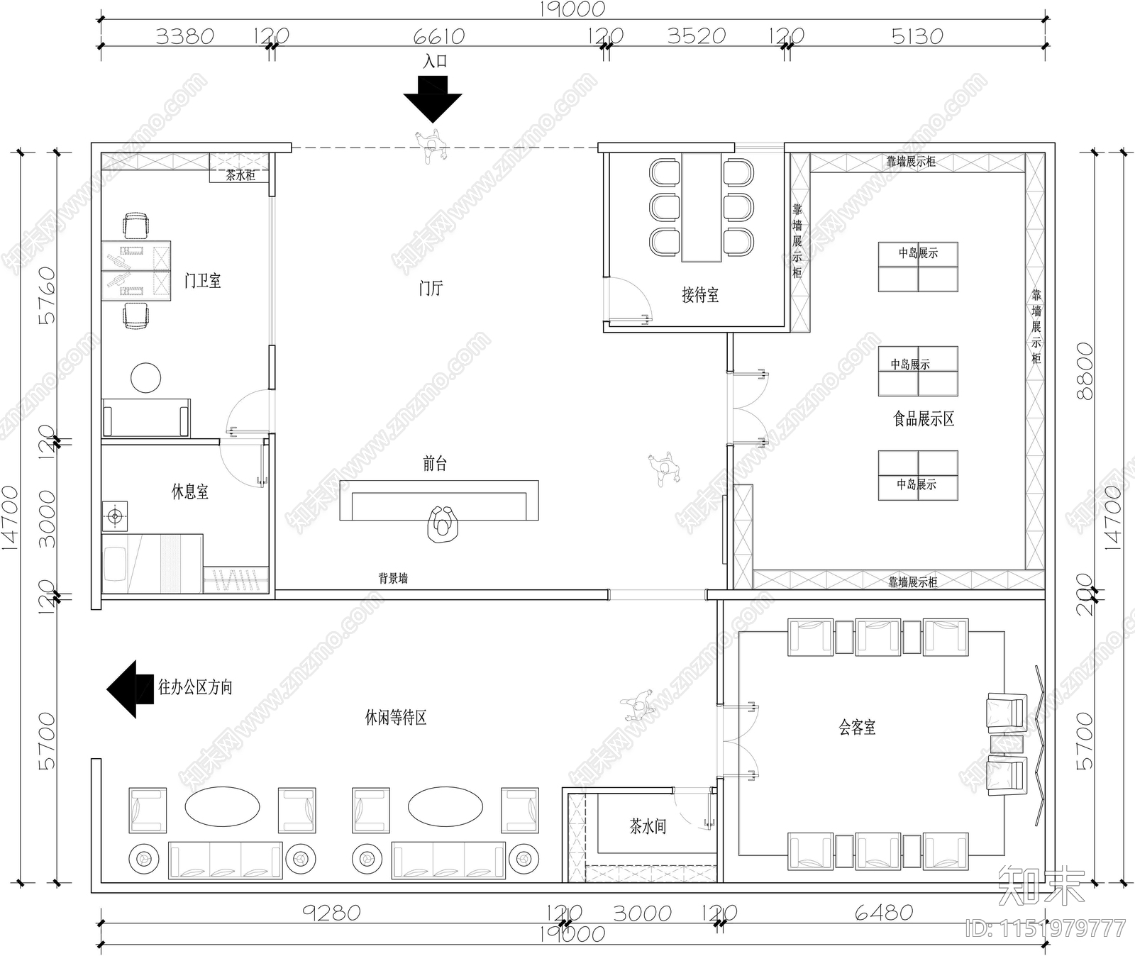
厂房办公室平面图施工图下载【ID:1151979777】

厂房办公室平面图CAD下载

ID: 1151979777
复制
上传作者
共同进步共同进步

上传时间2024-01-09

文件大小0.05M

设计风格:现代简约

CAD版本:CAD2004

包含文件:CAD

授权独家

立即下载
收藏
分享
举报
相关推荐
综合
办公空间
开放办公室
会议室
休息室
整体办公空间
独立办公室
直播间
茶水间
接待室
工作室