CAD频道
CAD图库
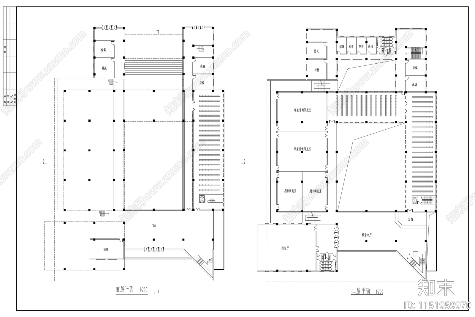
某高校图书馆室内 施工图
1/
4
Previous
Next
某高校图书馆室内CAD下载
ID: 1151959970
复制
上传作者
天选搬砖
上传时间
2024-01-09
文件大小
0.3M
设计风格:
现代简约
CAD版本:
CAD2014
包含文件:
CAD
授权
独家
立即下载
收藏
分享
举报
相关推荐
综合
文化建筑
图书馆建筑
博物馆建筑
体育馆建筑
美术馆建筑
游泳馆建筑
教堂
其他文化建筑