1/2
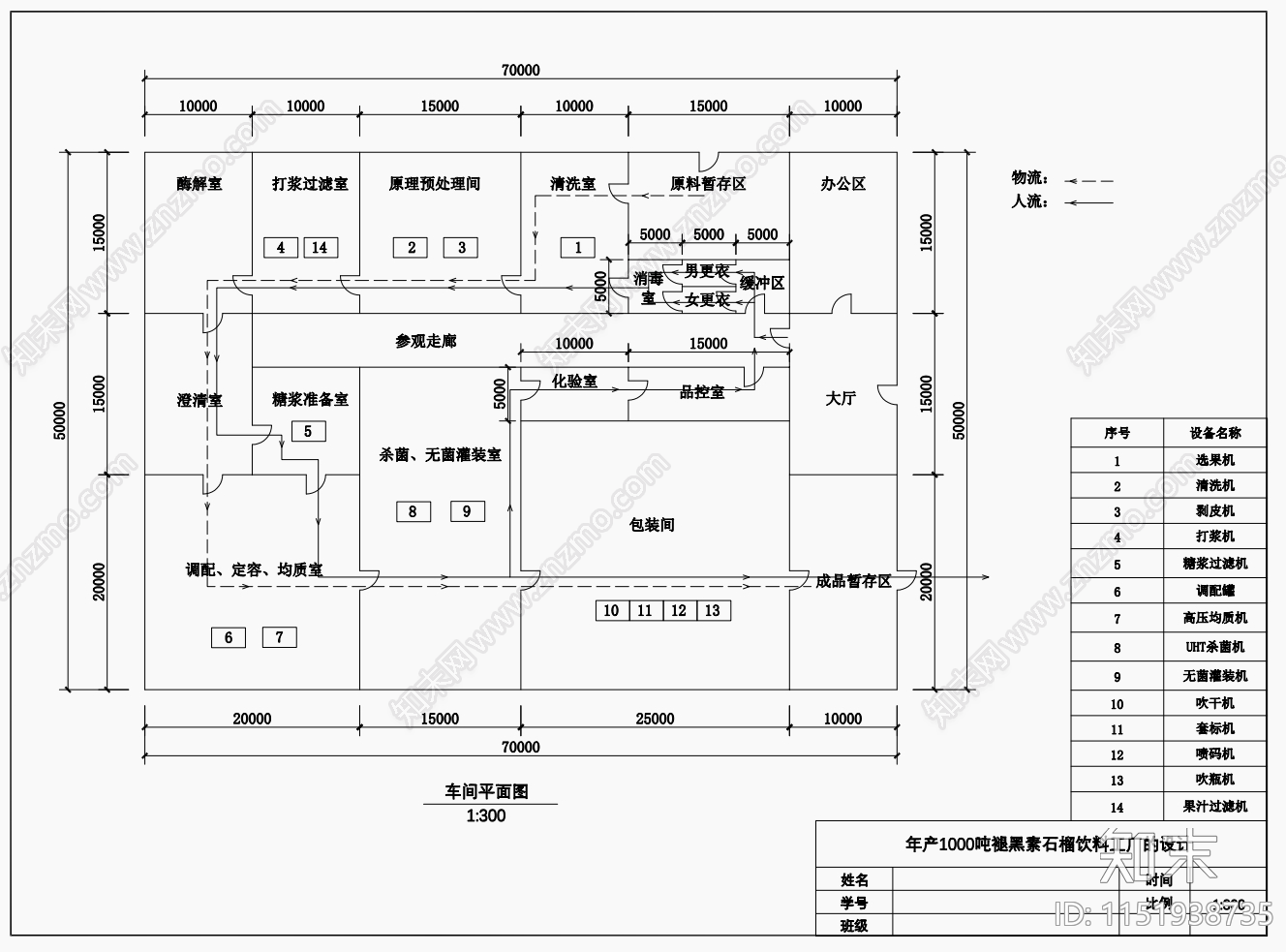
石榴饮料工厂平面图施工图下载【ID:1151938735】

石榴饮料工厂平面图CAD下载

ID: 1151938735
复制
上传作者
嫩牛五方【互】嫩牛五方【互】

上传时间2024-01-09

文件大小0.06M

设计风格:现代简约

CAD版本:CAD2004

包含文件:CAD

授权独家

立即下载
收藏
分享
举报
相关推荐
综合
平面图
工装平面图
景观平面图
规划平面图
其他平面图
小区平面图