1/6


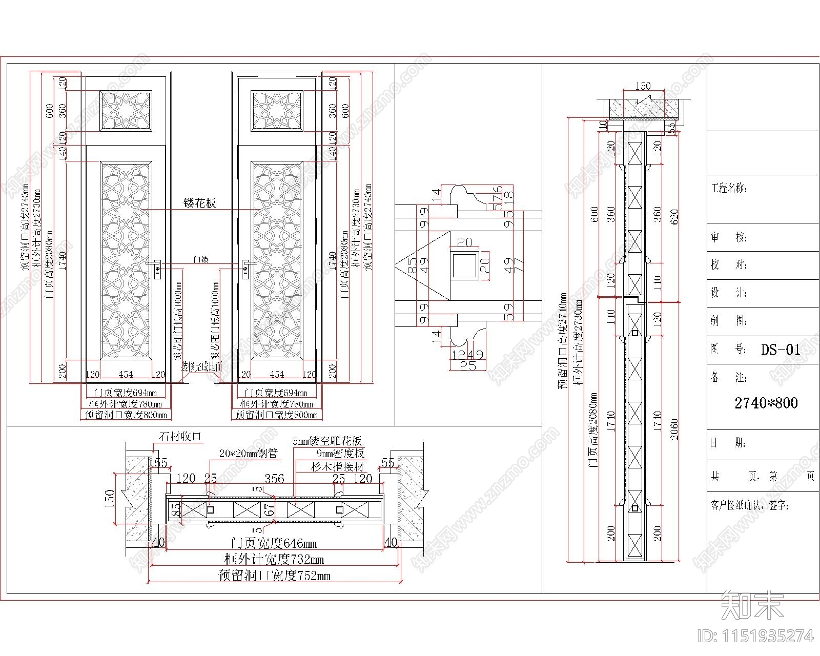
沈阳大酒店木门深化图节点CAD下载
ID: 1151935274
复制
上传作者
2356740212958
2356740212958上传时间2024-01-09
文件大小2.21M
设计风格:--
CAD版本:CAD2007
包含文件:CAD
授权普通
立即下载
收藏
分享
举报
相关推荐
综合
门节点
综合门节点
入户门
铁艺大门
月洞门
玻璃门节点
推拉门节点
隐形门节点


2356740212958上传时间2024-01-09
文件大小2.21M
设计风格:--
CAD版本:CAD2007
包含文件:CAD
授权普通