CAD频道
CAD图库
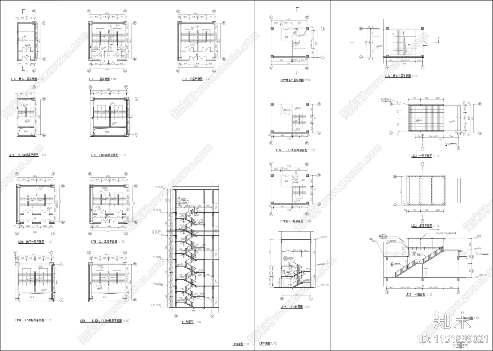
商业建筑楼梯详图 施工图
1/
10
Previous
Next
商业建筑楼梯详图CAD下载
ID: 1151899021
复制
上传作者
萍萍
上传时间
2024-01-08
文件大小
2.6M
设计风格:
--
CAD版本:
CAD2014
包含文件:
CAD
授权
普通
立即下载
收藏
分享
举报
相关推荐
综合
节点详图
楼梯节点
吊顶节点
墙面节点
地面节点
门节点
其他节点详图
建筑工程节点
景观小品
水景