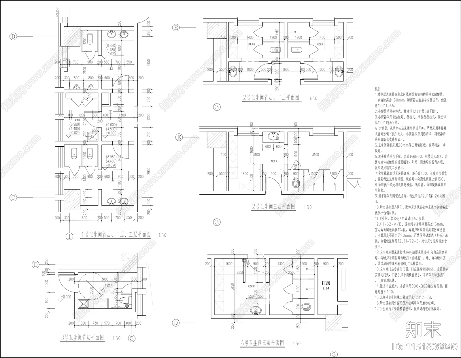
卫生间建筑平面施工图下载【ID:1151808040】

卫生间建筑平面CAD下载

ID: 1151808040
复制
上传作者
萍萍萍萍

上传时间2024-01-05

文件大小1.12M

设计风格:现代简约

CAD版本:CAD2014

包含文件:CAD

授权普通

立即下载
收藏
分享
举报
相关推荐
综合
平立面系统图
建筑平面图
平面图
立面图/剖面图
家装平面图