CAD频道
CAD图库
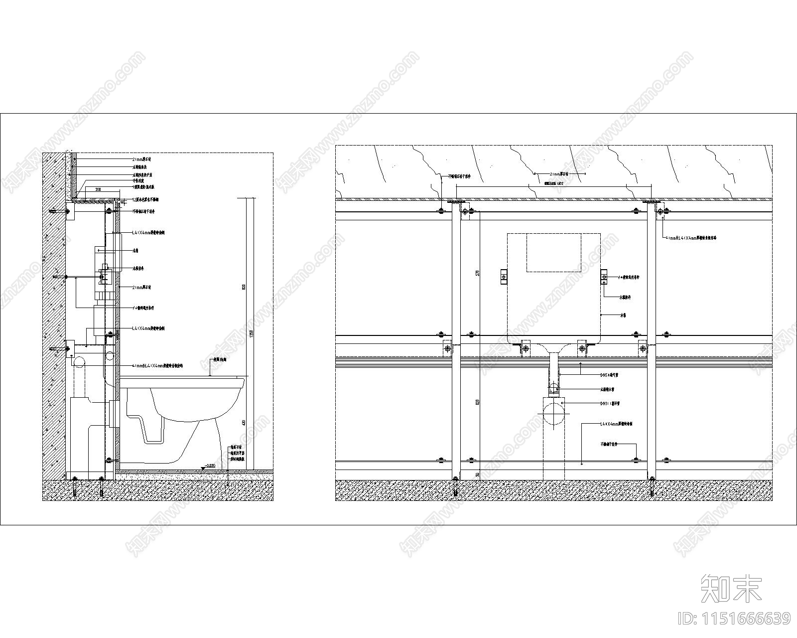
马桶及悬挂座厕 节点 施工图 家具节点
1/
3
Previous
Next
马桶及悬挂座厕CAD下载
ID: 1151666639
复制
上传作者
园林景观施工图
上传时间
2024-01-04
文件大小
0.14M
设计风格:
--
CAD版本:
CAD2014
包含文件:
CAD
授权
独家
立即下载
收藏
分享
举报
相关推荐
综合
家具节点详图
综合家具节点
吧台节点
壁炉节点
柜体节点
卡座节点
前台节点