
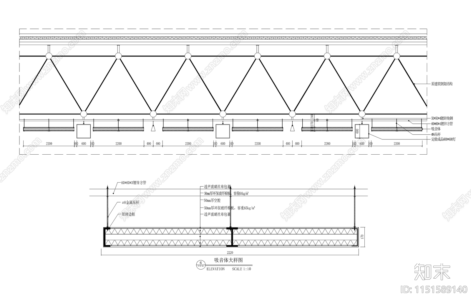
网架体育馆吸声体吊顶节点CAD下载
ID: 1151589140
复制
上传作者
(盗模必追)节点图合集
(盗模必追)节点图合集上传时间2024-01-03
文件大小0.47M
设计风格:--
CAD版本:CAD2004
包含文件:CAD
授权独家
立即下载
收藏
分享
举报
相关推荐
综合
吊顶节点
矿棉板吊顶
方通吊顶
格栅吊顶
扣板吊顶
软膜天花
铝单板吊顶
GRG吊顶节点
石膏板吊顶

(盗模必追)节点图合集上传时间2024-01-03
文件大小0.47M
设计风格:--
CAD版本:CAD2004
包含文件:CAD
授权独家