CAD频道
CAD图库
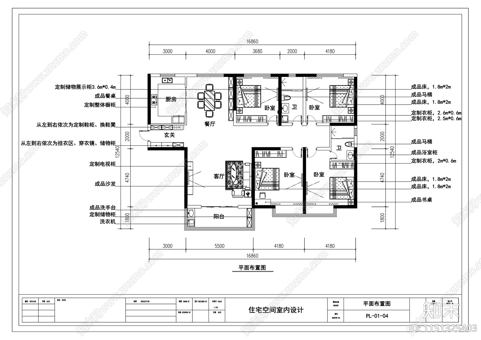
四室二厅平层 施工图
1/
8
Previous
Next
四室二厅平层CAD下载
ID: 1151325403
复制
上传作者
嫩牛五方【互】
上传时间
2023-12-29
文件大小
0.66M
设计风格:
现代简约
CAD版本:
CAD2004
包含文件:
CAD
授权
独家
立即下载
收藏
分享
举报
相关推荐
综合
平层
大平层
小户型平层
超大型平层