CAD频道
CAD图库
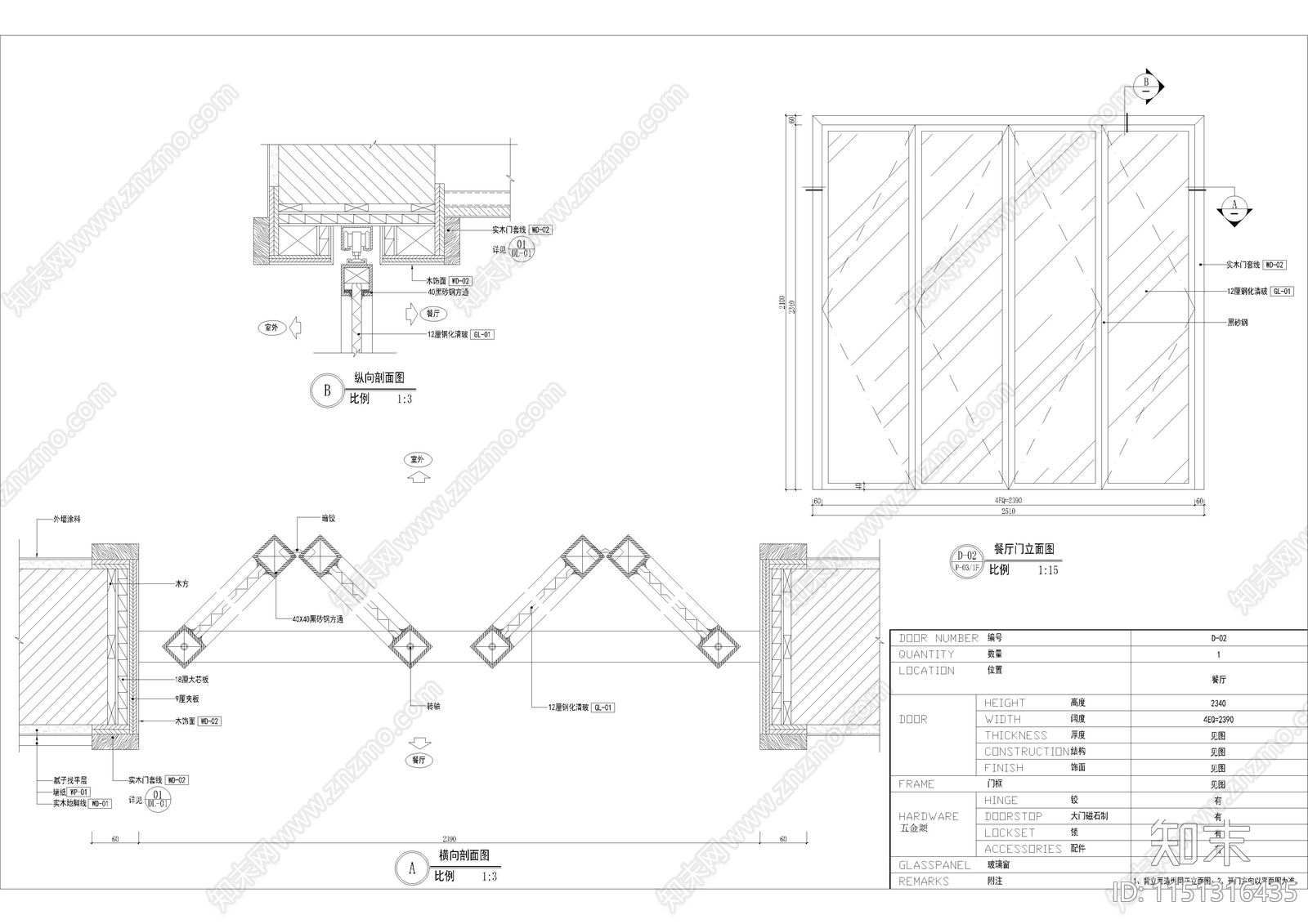
通用餐厅折叠门详图 施工图 门节点
1/
4
Previous
Next
通用餐厅折叠门详图CAD下载
ID: 1151316435
复制
上传作者
乐事!!!
上传时间
2023-12-29
文件大小
0.26M
设计风格:
--
CAD版本:
CAD2007
包含文件:
CAD
授权
普通
立即下载
收藏
分享
举报
相关推荐
综合
门节点
隐形门节点
入户门
铁艺大门
月洞门
玻璃门节点
推拉门节点
综合门节点