
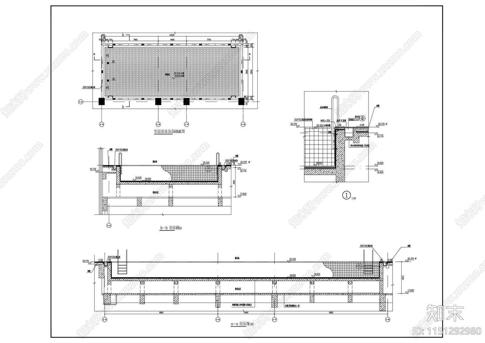
恒温泳池大样CAD下载
ID: 1151292980
复制
上传作者
常威打来福
常威打来福上传时间2023-12-29
文件大小0.11M
设计风格:现代简约
CAD版本:天正CAD6.0
包含文件:CAD
授权独家
立即下载
收藏
分享
举报
相关推荐
综合
节点详图
水景
吊顶节点
墙面节点
地面节点
门节点
其他节点详图
建筑工程节点
景观小品
楼梯节点

常威打来福上传时间2023-12-29
文件大小0.11M
设计风格:现代简约
CAD版本:天正CAD6.0
包含文件:CAD
授权独家