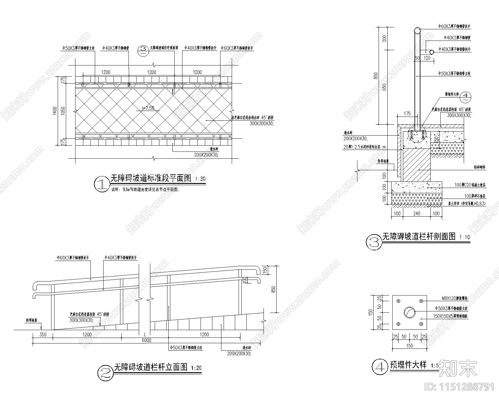
无障碍坡道及栏杆节点施工图下载【ID:1151288791】

无障碍坡道及栏杆节点CAD下载

ID: 1151288791
复制
上传作者
园林景观施工图园林景观施工图

上传时间2023-12-29

文件大小1M

设计风格:--

CAD版本:CAD2014

包含文件:CAD

授权独家

立即下载
收藏
分享
举报
相关推荐
综合
景观小品
坡道
亭子
廊架
景墙
综合景观小品
雨棚
围墙
挡土墙
入口