
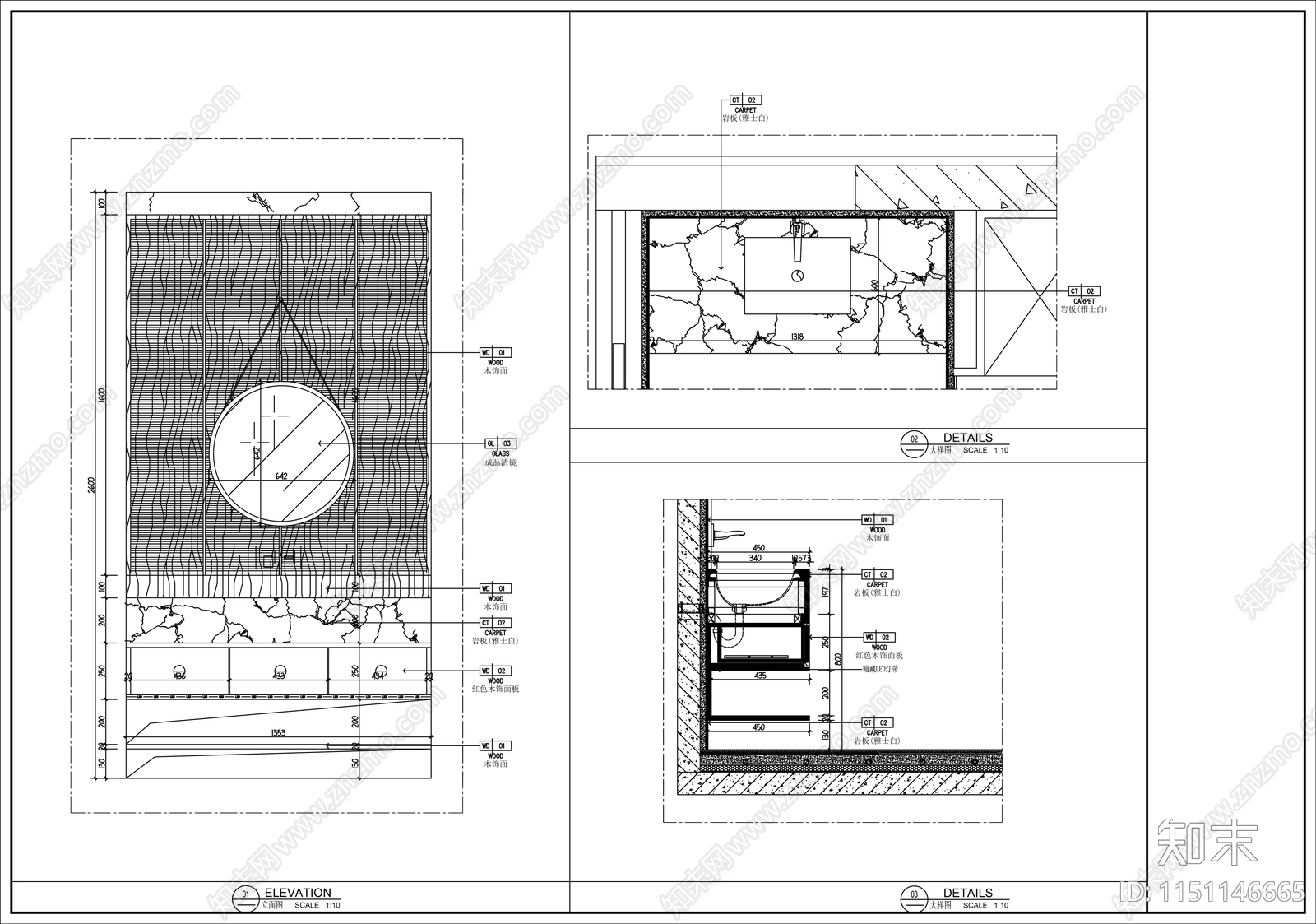
现代室内洗手台CAD下载
ID: 1151146665
复制
上传作者
Summer
Summer上传时间2023-12-27
文件大小2.53M
设计风格:--
CAD版本:CAD2013
包含文件:CAD
授权独家
立即下载
收藏
分享
举报
相关推荐
综合
卫浴节点
洗手台节点
地漏节点
镜子节点
淋浴房节点
拖把池节点
卫生间防水
卫生间排水
卫生间隔断
卫生间综合节点

Summer上传时间2023-12-27
文件大小2.53M
设计风格:--
CAD版本:CAD2013
包含文件:CAD
授权独家