CAD频道
CAD图库
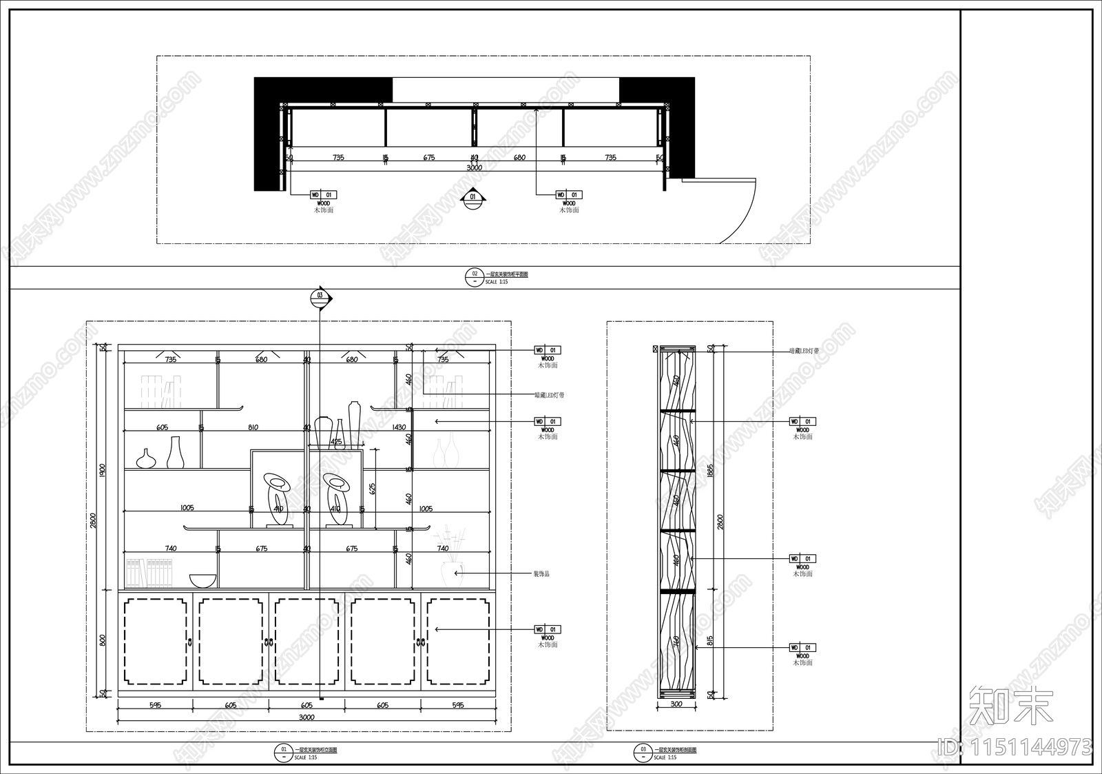
新中式博古架大样图 节点图 施工图 柜类 家具节点详图
新中式博古架大样图CAD下载
ID: 1151144973
复制
上传作者
Summer
上传时间
2023-12-27
文件大小
1.9M
设计风格:
--
CAD版本:
CAD2013
包含文件:
CAD
授权
独家
立即下载
收藏
分享
举报
相关推荐
综合
家具节点详图
柜体节点
吧台节点
壁炉节点
卡座节点
前台节点
综合家具节点