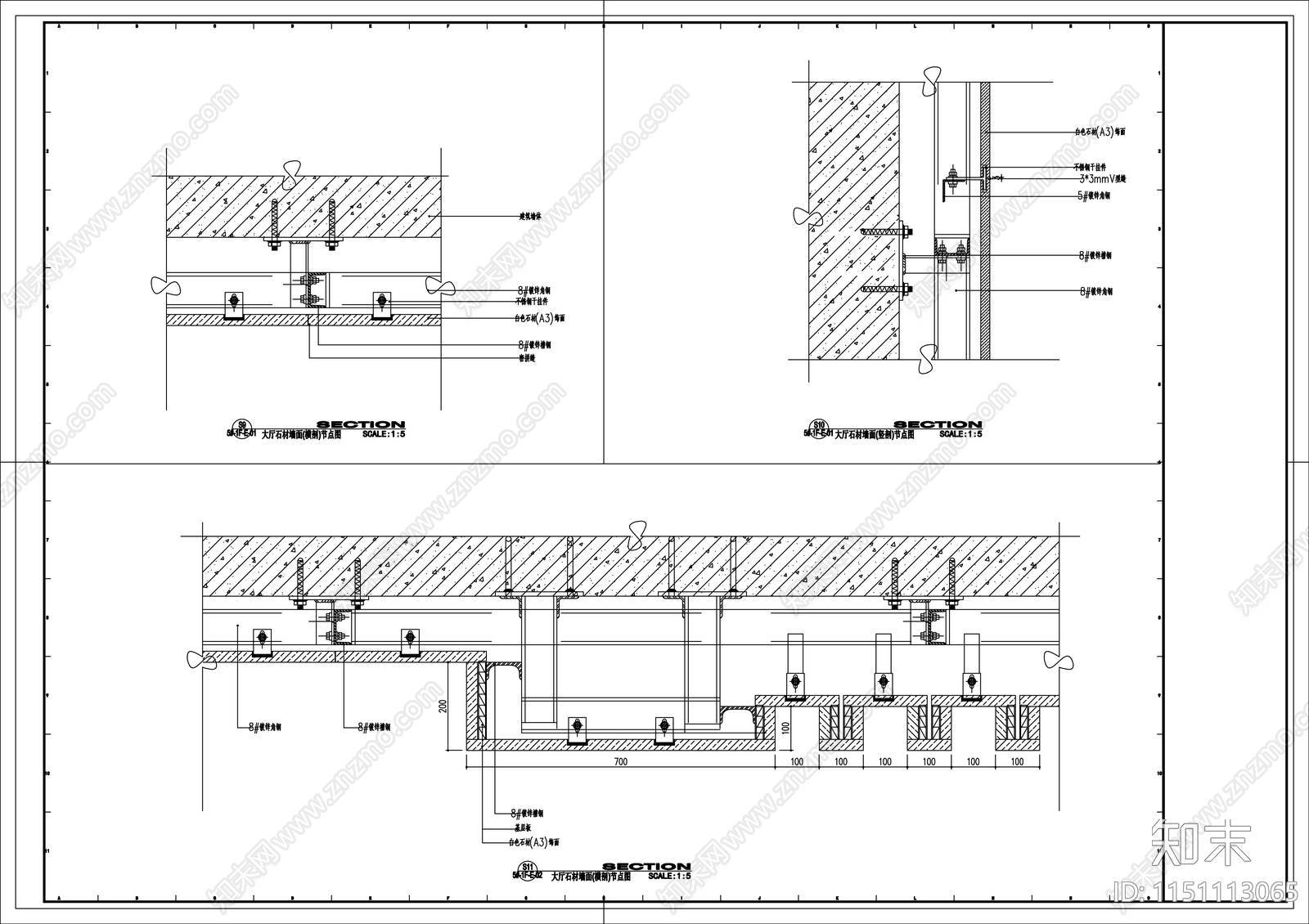
现代室内墙面干挂石材节点图施工图下载【ID:1151113065】

现代室内墙面干挂石材节点图CAD下载

ID: 1151113065
复制
上传作者
SummerSummer

上传时间2023-12-27

文件大小0.79M

设计风格:--

CAD版本:CAD2007

包含文件:CAD

授权独家

立即下载
收藏
分享
举报
相关推荐
综合
墙面节点
背景墙节点
轻钢龙骨隔墙
壁龛节点
隔音墙节点