1/4


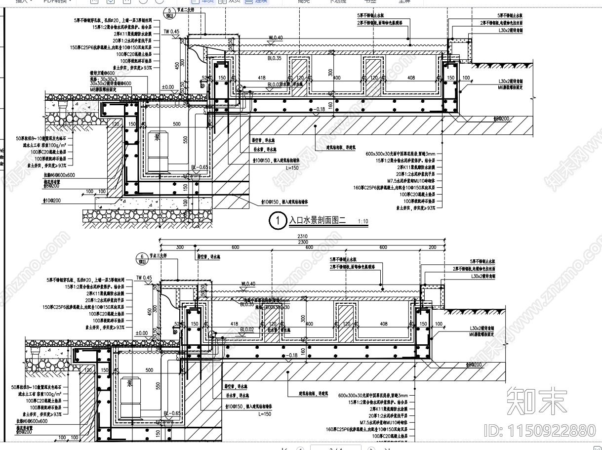
地产大门水景CAD下载
ID: 1150922880
复制
上传作者
景观施工图专业户
景观施工图专业户上传时间2023-12-24
文件大小0.71M
设计风格:现代简约
CAD版本:CAD2010
包含文件:CAD
授权独家
立即下载
收藏
分享
举报
相关推荐
综合
节点详图
水景
吊顶节点
墙面节点
地面节点
门节点
其他节点详图
建筑工程节点
景观小品
楼梯节点


景观施工图专业户上传时间2023-12-24
文件大小0.71M
设计风格:现代简约
CAD版本:CAD2010
包含文件:CAD
授权独家