CAD频道
CAD图库
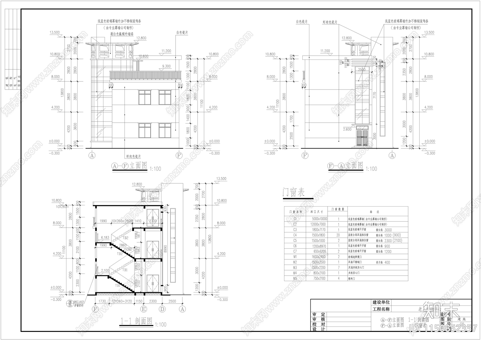
老人活动中心 敬老院 养老院 施工图 疗养院
1/
4
Previous
Next
老人活动中心CAD下载
ID: 1150852357
复制
上传作者
从也1919
上传时间
2023-12-23
文件大小
0.46M
设计风格:
现代简约
CAD版本:
--
包含文件:
CAD
授权
独家
立即下载
收藏
分享
举报
相关推荐
综合
公共空间
活动中心
其他公共空间
公共卫生间
宿舍
门头
服务中心
会展
母婴室
档案室