1/5


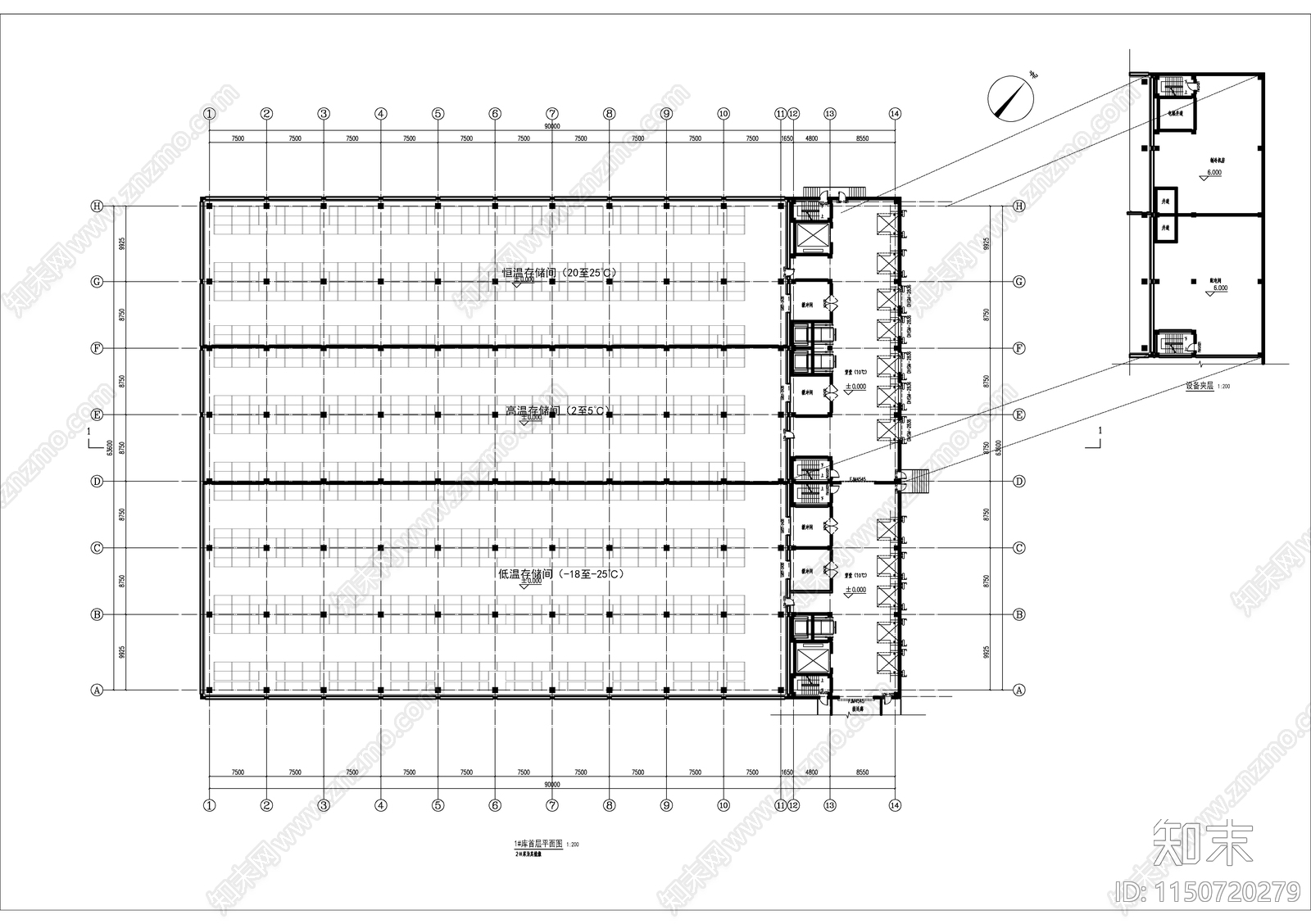
某海航仓库建筑平面图CAD下载
ID: 1150720279
复制
上传作者
承诺不熬椰
承诺不熬椰上传时间2023-12-21
文件大小0.64M
设计风格:现代简约
CAD版本:CAD2004
包含文件:CAD
授权独家
立即下载
收藏
分享
举报
相关推荐
综合
公共空间
仓库
其他公共空间
公共卫生间
宿舍
门头
服务中心
活动中心
会展
母婴室


承诺不熬椰上传时间2023-12-21
文件大小0.64M
设计风格:现代简约
CAD版本:CAD2004
包含文件:CAD
授权独家