
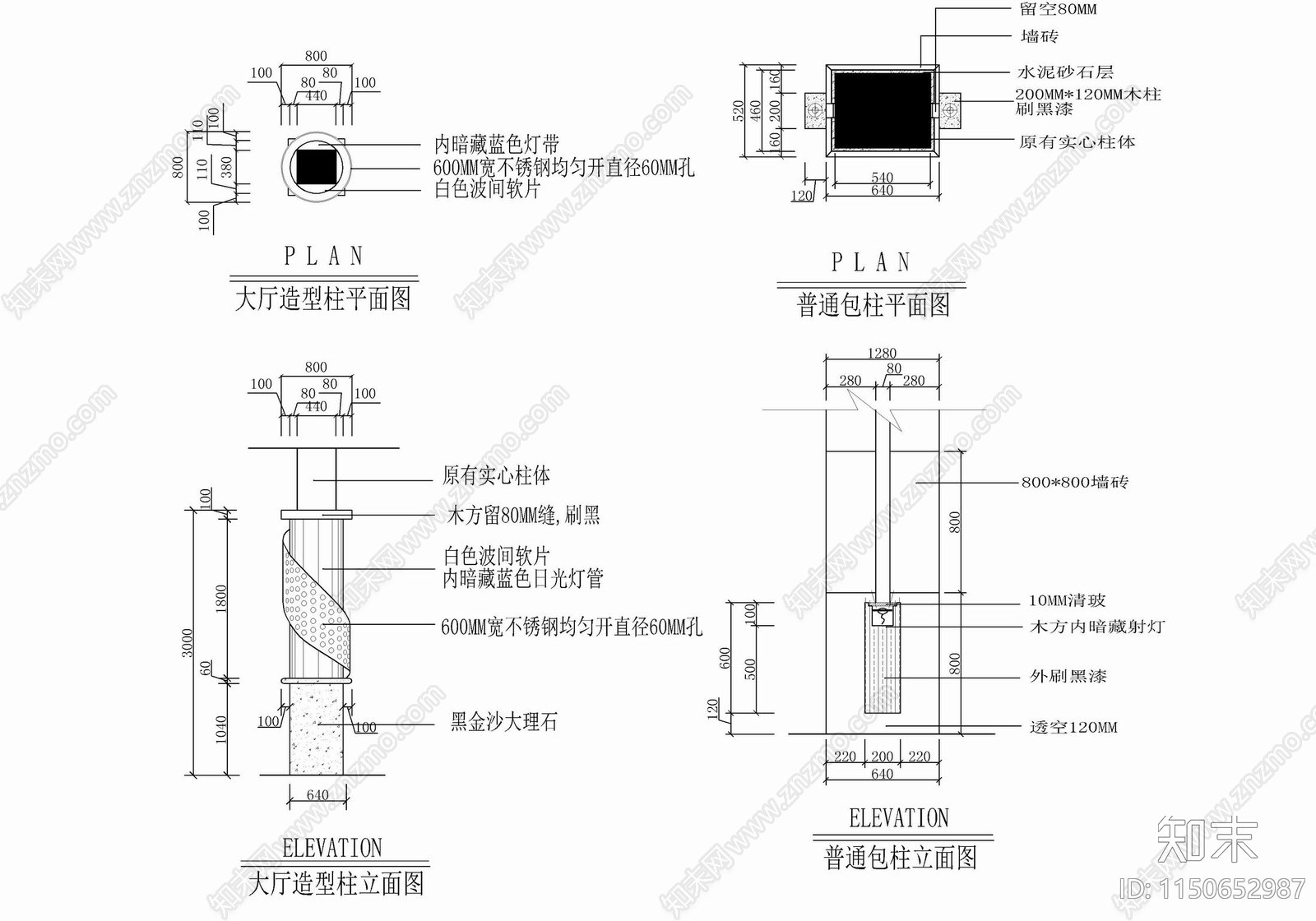
网络会所圆形及方形柱子处理节点大样详图CAD下载
ID: 1150652987
复制
上传作者
@白鹿原
@白鹿原上传时间2023-12-20
文件大小0.04M
设计风格:--
CAD版本:CAD2004
包含文件:CAD
授权普通
立即下载
收藏
分享
举报
相关推荐
综合
CAD图库
楼梯构件
家具图库
其他图库
灯具图库
植物图库
填充图案
交通工具图库
工装图库
制图规范

@白鹿原上传时间2023-12-20
文件大小0.04M
设计风格:--
CAD版本:CAD2004
包含文件:CAD
授权普通