1/2


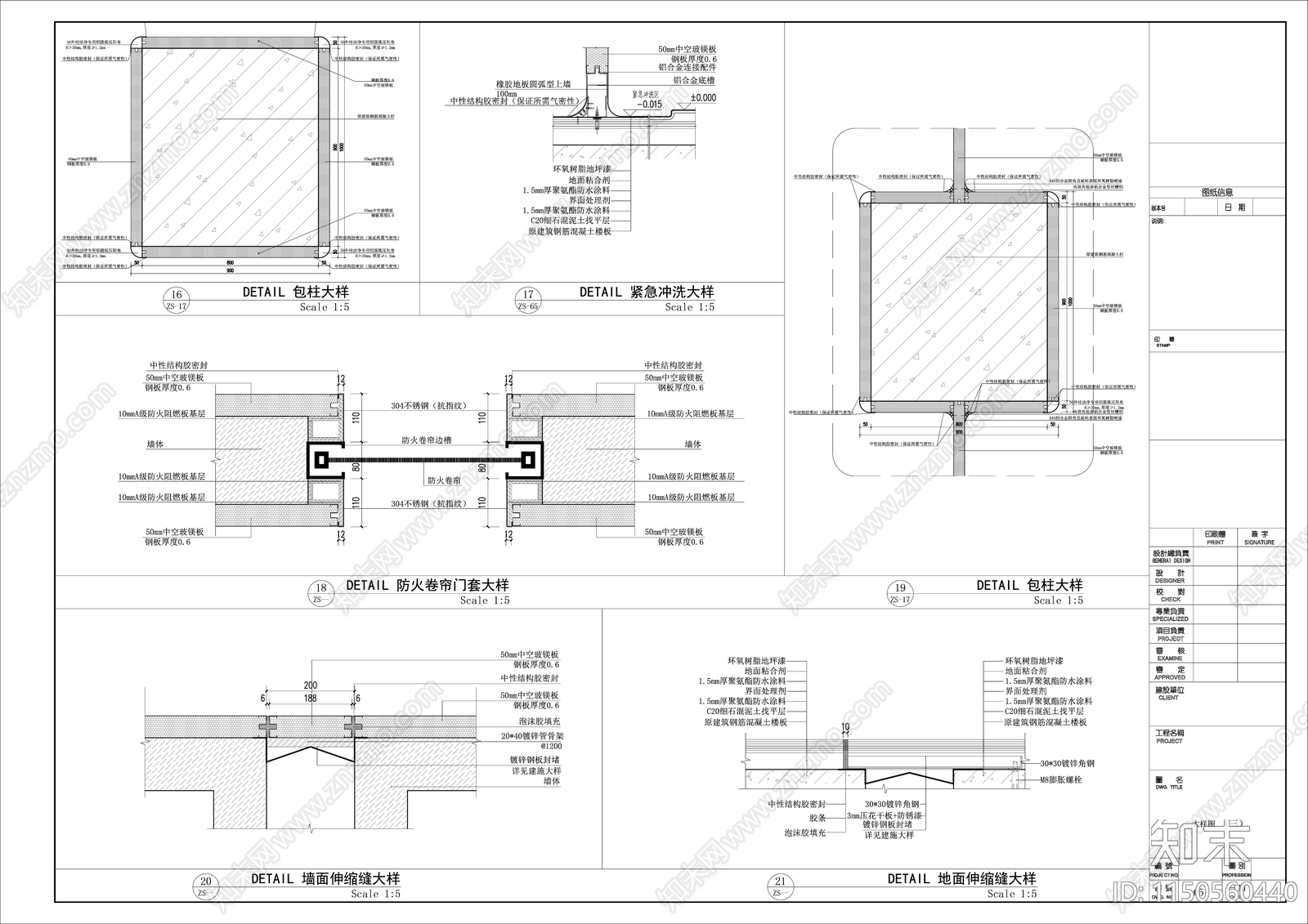
实验室玻镁板包卷帘门消防栓门大样CAD下载
ID: 1150560440
复制
上传作者
够钟(粉必回关)
够钟(粉必回关)上传时间2023-12-19
文件大小1.3M
设计风格:--
CAD版本:天正CAD5.0
包含文件:CAD
授权独家
立即下载
收藏
分享
举报
相关推荐
综合
节点详图
器材设备详图
吊顶节点
墙面节点
地面节点
门节点
其他节点详图
建筑工程节点
景观小品
楼梯节点


够钟(粉必回关)上传时间2023-12-19
文件大小1.3M
设计风格:--
CAD版本:天正CAD5.0
包含文件:CAD
授权独家