CAD频道
CAD图库
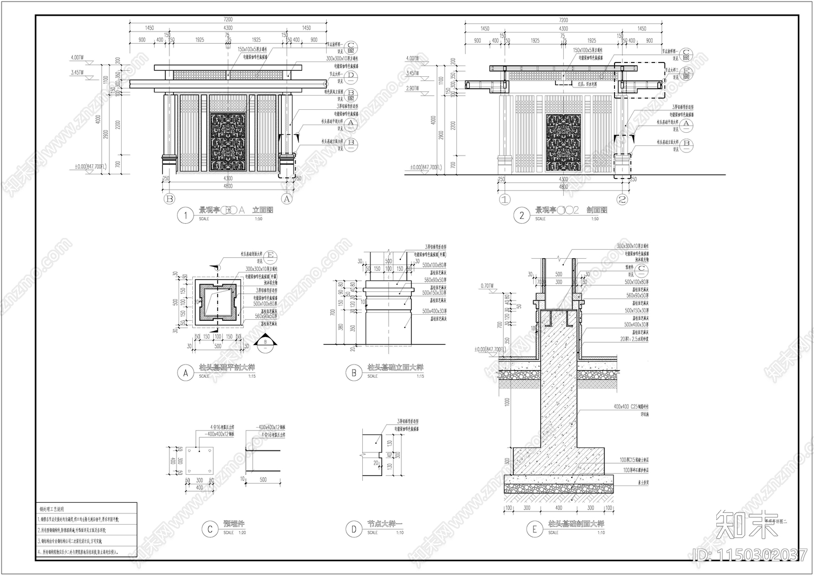
现代景观亭大样 施工图
1/
3
Previous
Next
现代景观亭大样CAD下载
ID: 1150302037
复制
上传作者
194636
上传时间
2023-12-15
文件大小
6.37M
设计风格:
现代简约
CAD版本:
CAD2014
包含文件:
CAD
授权
普通
立即下载
收藏
分享
举报
相关推荐
综合
景观小品
亭子
廊架
景墙
综合景观小品
雨棚
围墙
挡土墙
入口
景观坐凳