1/2


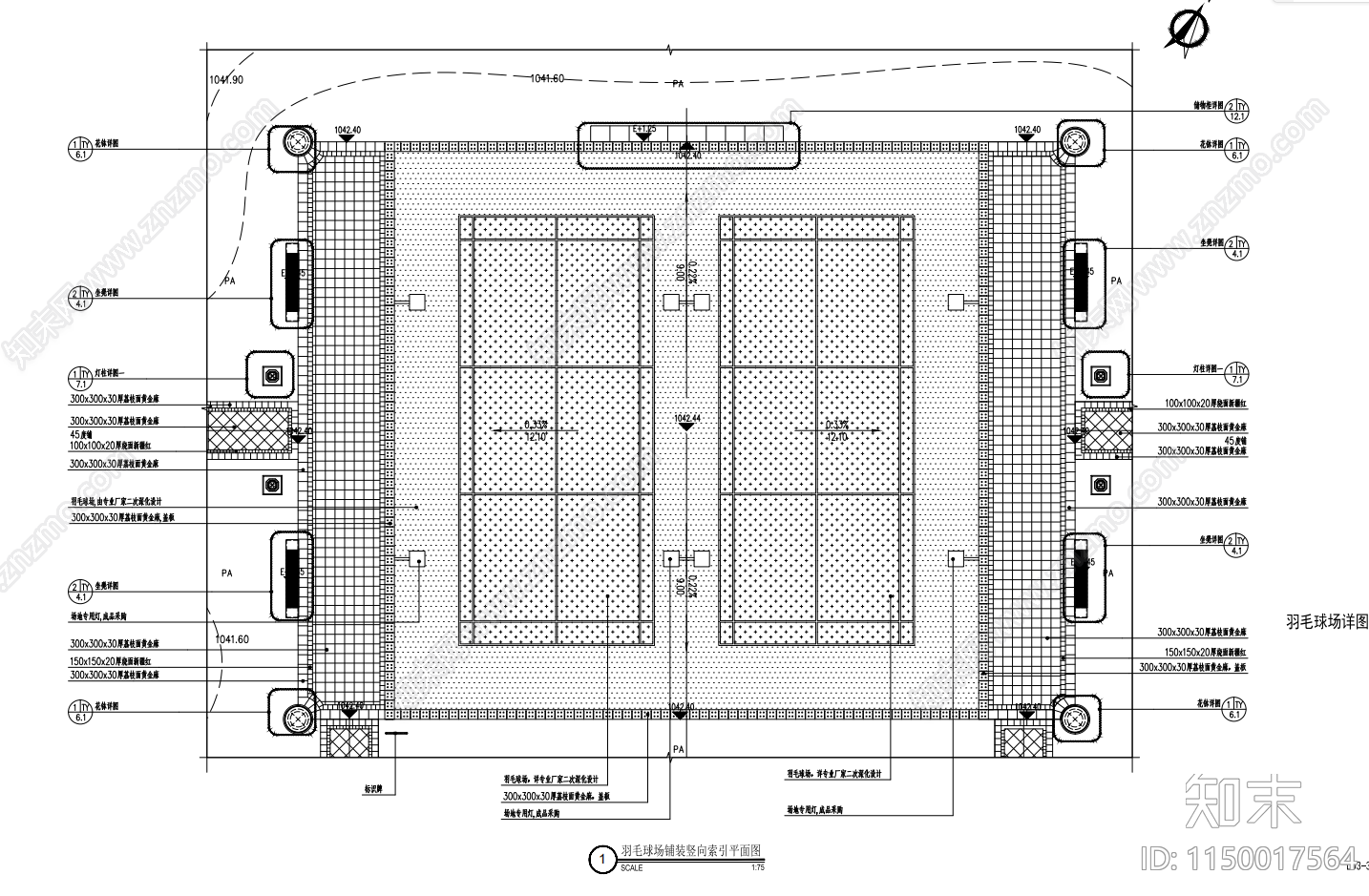
羽毛球场室内CAD下载
ID: 1150017564
复制
上传作者
盗图必究(详图)
盗图必究(详图)上传时间2023-12-11
文件大小5.69M
设计风格:现代简约
CAD版本:CAD2004
包含文件:CAD
授权独家
立即下载
收藏
分享
举报
相关推荐
综合
运动场
羽毛球场
网球场
篮球场
其他运动场地
操场
足球场
看台
高尔夫


盗图必究(详图)上传时间2023-12-11
文件大小5.69M
设计风格:现代简约
CAD版本:CAD2004
包含文件:CAD
授权独家