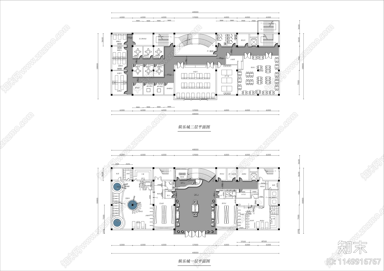
1600㎡两层洗浴娱乐中心平面布置图施工图下载【ID:1149916767】

1600㎡两层洗浴娱乐中心平面布置图CAD下载

ID: 1149916767
复制
上传作者
灵感碎片灵感碎片

上传时间2023-12-09

文件大小0.89M

设计风格:现代简约

CAD版本:CAD2004

包含文件:CAD

授权独家

立即下载
收藏
分享
举报
相关推荐
综合
平面图
工装平面图
景观平面图
规划平面图
其他平面图
小区平面图