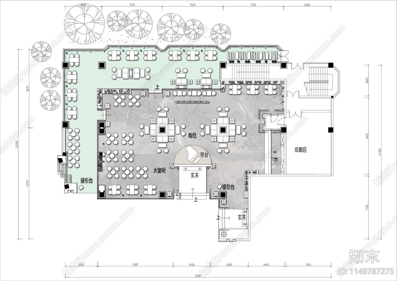
600㎡音乐咖啡馆平面布置方案图施工图下载【ID:1149787275】

600㎡音乐咖啡馆平面布置方案图CAD下载

ID: 1149787275
复制
上传作者
灵感碎片灵感碎片

上传时间2023-12-07

文件大小1.86M

设计风格:--

CAD版本:CAD2004

包含文件:CAD

授权独家

立即下载
收藏
分享
举报
相关推荐
综合
平面图
工装平面图
景观平面图
规划平面图
其他平面图
小区平面图