
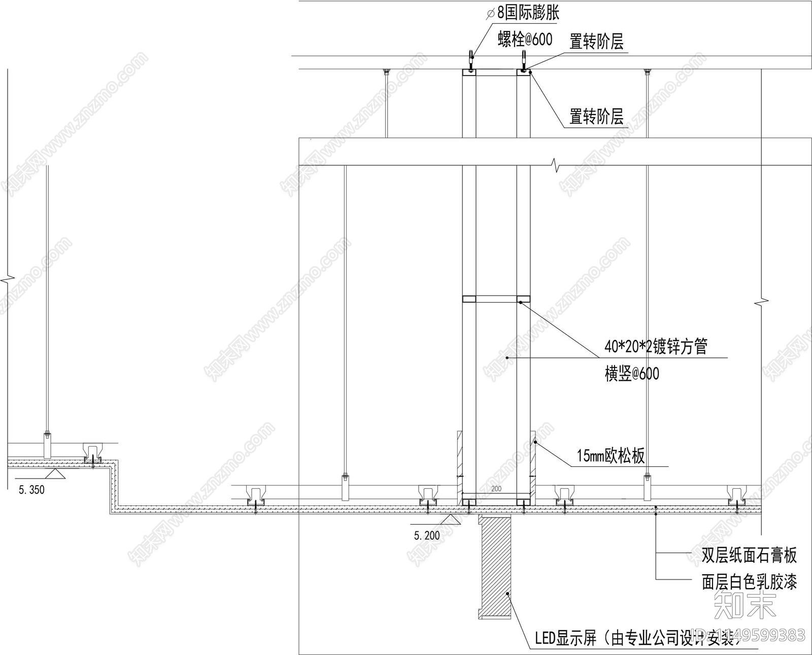
LED显示屏与石膏板固定方法节点详图CAD下载
ID: 1149599383
复制
上传作者
此去半生
此去半生上传时间2023-12-05
文件大小0.04M
设计风格:现代简约
CAD版本:CAD2004
包含文件:CAD
授权普通
立即下载
收藏
分享
举报
相关推荐
综合
节点详图
其他节点详图
吊顶节点
墙面节点
地面节点
门节点
建筑工程节点
景观小品
楼梯节点
水景

此去半生上传时间2023-12-05
文件大小0.04M
设计风格:现代简约
CAD版本:CAD2004
包含文件:CAD
授权普通