CAD频道
CAD图库
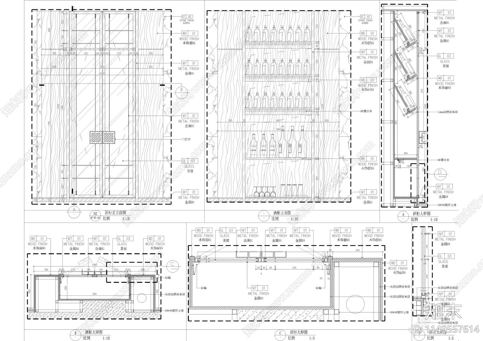
酒柜书柜衣柜节点 施工图 柜类 家具节点详图
1/
4
Previous
Next
酒柜书柜衣柜节点CAD下载
ID: 1149557614
复制
上传作者
xin图
上传时间
2023-12-05
文件大小
5.7M
设计风格:
现代简约
CAD版本:
CAD2004
包含文件:
CAD
授权
独家
立即下载
收藏
分享
举报
相关推荐
综合
家具节点详图
柜体节点
吧台节点
壁炉节点
卡座节点
前台节点
综合家具节点