CAD频道
CAD图库
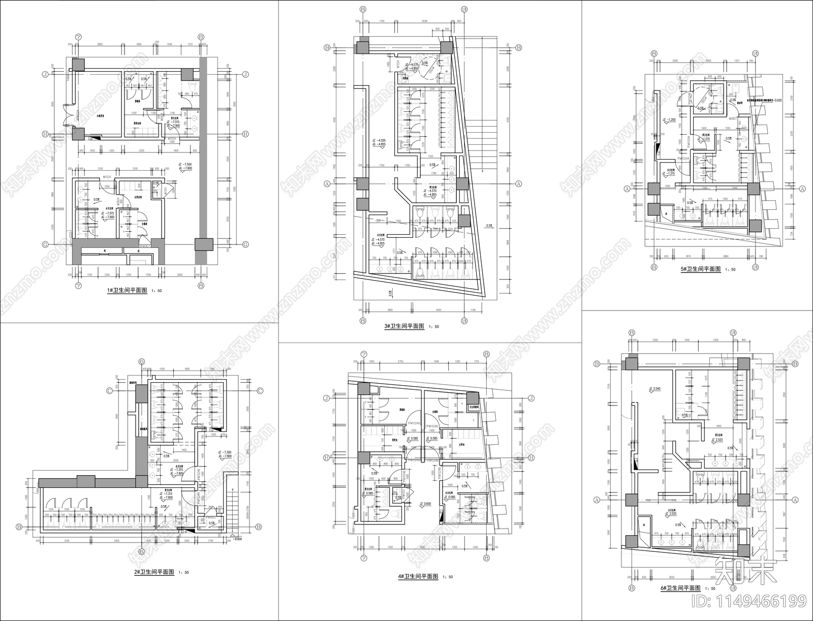
工装空间卫生间平面图
1/
3
Previous
Next
工装空间卫生间平面图CAD下载
ID: 1149466199
复制
上传作者
萍萍
上传时间
2023-12-03
文件大小
0.78M
设计风格:
现代简约
CAD版本:
CAD2014
包含文件:
CAD
授权
普通
立即下载
收藏
分享
举报
相关推荐
综合
平面图
工装平面图
景观平面图
规划平面图
其他平面图
小区平面图