1/8


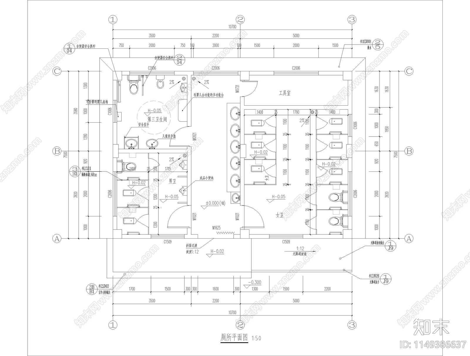
坡屋顶仿古公厕CAD下载
ID: 1149386637
复制
上传作者
我没有说过这句
我没有说过这句上传时间2023-12-02
文件大小3.28M
设计风格:现代简约
CAD版本:CAD2013
包含文件:CAD
授权独家
立即下载
收藏
分享
举报
相关推荐
综合
公共建筑
公厕
会议中心建筑
行政机构建筑
其他公共建筑
医院建筑
门卫室建筑
停车楼
消防站
集装箱


我没有说过这句上传时间2023-12-02
文件大小3.28M
设计风格:现代简约
CAD版本:CAD2013
包含文件:CAD
授权独家