CAD频道
CAD图库
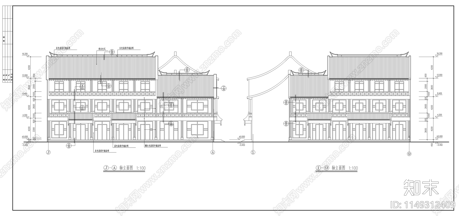
仿古清式公建建筑节点 施工图 古建
1/
10
Previous
Next
仿古清式公建建筑节点CAD下载
ID: 1149312409
复制
上传作者
天选搬砖
上传时间
2023-12-01
文件大小
4.02M
设计风格:
现代简约
CAD版本:
CAD2014
包含文件:
CAD
授权
独家
立即下载
收藏
分享
举报
相关推荐
综合
古建
仿古建筑
祠堂
寺庙
徽派建筑
其他古建筑