1/2


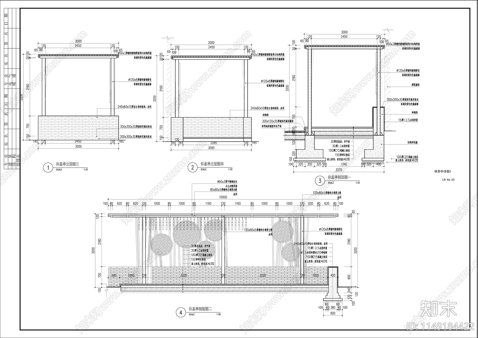
最新美丽乡村仿竹子特色廊架CAD下载
ID: 1149184422
复制
上传作者
仙女下凡尘
仙女下凡尘上传时间2023-11-29
文件大小0.47M
设计风格:现代简约
CAD版本:CAD2014
包含文件:CAD
授权独家
立即下载
收藏
分享
举报
相关推荐
综合
景观小品
综合景观小品
亭子
廊架
景墙
雨棚
围墙
挡土墙
入口
景观坐凳


仙女下凡尘上传时间2023-11-29
文件大小0.47M
设计风格:现代简约
CAD版本:CAD2014
包含文件:CAD
授权独家