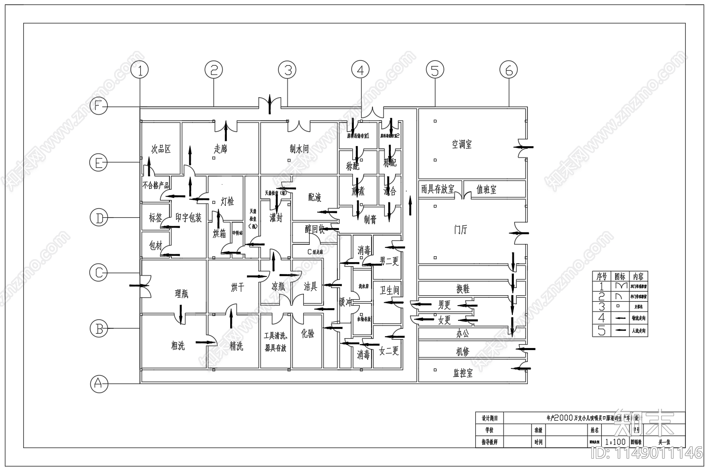
中药口服液车间平面图施工图下载【ID:1149011146】

中药口服液车间平面图CAD下载

ID: 1149011146
复制
上传作者
小小鱼鱼小小鱼鱼

上传时间2023-11-28

文件大小0.08M

设计风格:现代简约

CAD版本:CAD2004

包含文件:CAD

授权独家

立即下载
收藏
分享
举报
相关推荐
综合
公共空间
车间
其他公共空间
公共卫生间
宿舍
门头
服务中心
活动中心
会展
母婴室