1/2


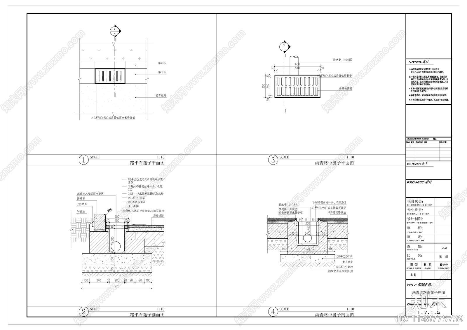
沥青路雨水箅子节点CAD下载
ID: 1148775739
复制
上传作者
景观施工图互粉
景观施工图互粉上传时间2023-11-24
文件大小2.77M
设计风格:现代简约
CAD版本:CAD2012
包含文件:CAD
授权独家
立即下载
收藏
分享
举报
相关推荐
综合
地面节点
路面节点
地坪漆
地台节点
地毯节点
门槛石节点
木地板
花岗岩
地面综合节点


景观施工图互粉上传时间2023-11-24
文件大小2.77M
设计风格:现代简约
CAD版本:CAD2012
包含文件:CAD
授权独家