1/3


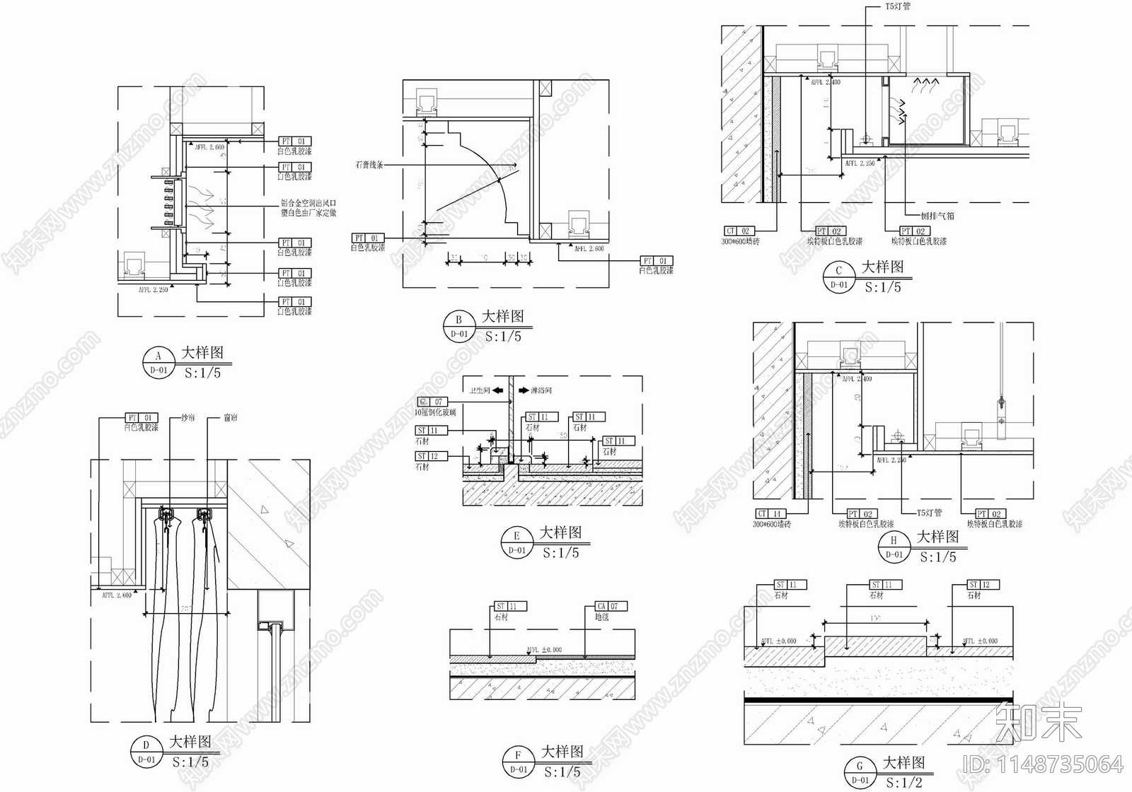
卫生间吊顶及淋浴房地面石材节点CAD下载
ID: 1148735064
复制
上传作者
@白鹿原
@白鹿原上传时间2023-11-23
文件大小1M
设计风格:现代简约
CAD版本:CAD2004
包含文件:CAD
授权普通
立即下载
收藏
分享
举报
相关推荐
综合
吊顶节点
方通吊顶
格栅吊顶
扣板吊顶
软膜天花
铝单板吊顶
GRG吊顶节点
石膏板吊顶
矿棉板吊顶


@白鹿原上传时间2023-11-23
文件大小1M
设计风格:现代简约
CAD版本:CAD2004
包含文件:CAD
授权普通