CAD频道
CAD图库
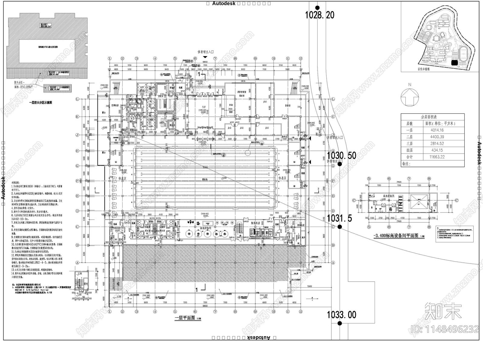
某中学室内体育馆建筑施工图
1/
8
Previous
Next
某中学室内体育馆建筑CADCAD下载
ID: 1148496232
复制
上传作者
呦呵呵
上传时间
2023-11-20
文件大小
2.95M
设计风格:
现代简约
CAD版本:
CAD2004
包含文件:
CAD
授权
独家
立即下载
收藏
分享
举报
相关推荐
综合
文化空间
体育馆
博物馆
图书馆
其他文化空间
美术馆
游泳馆
科技馆
剧院