1/8


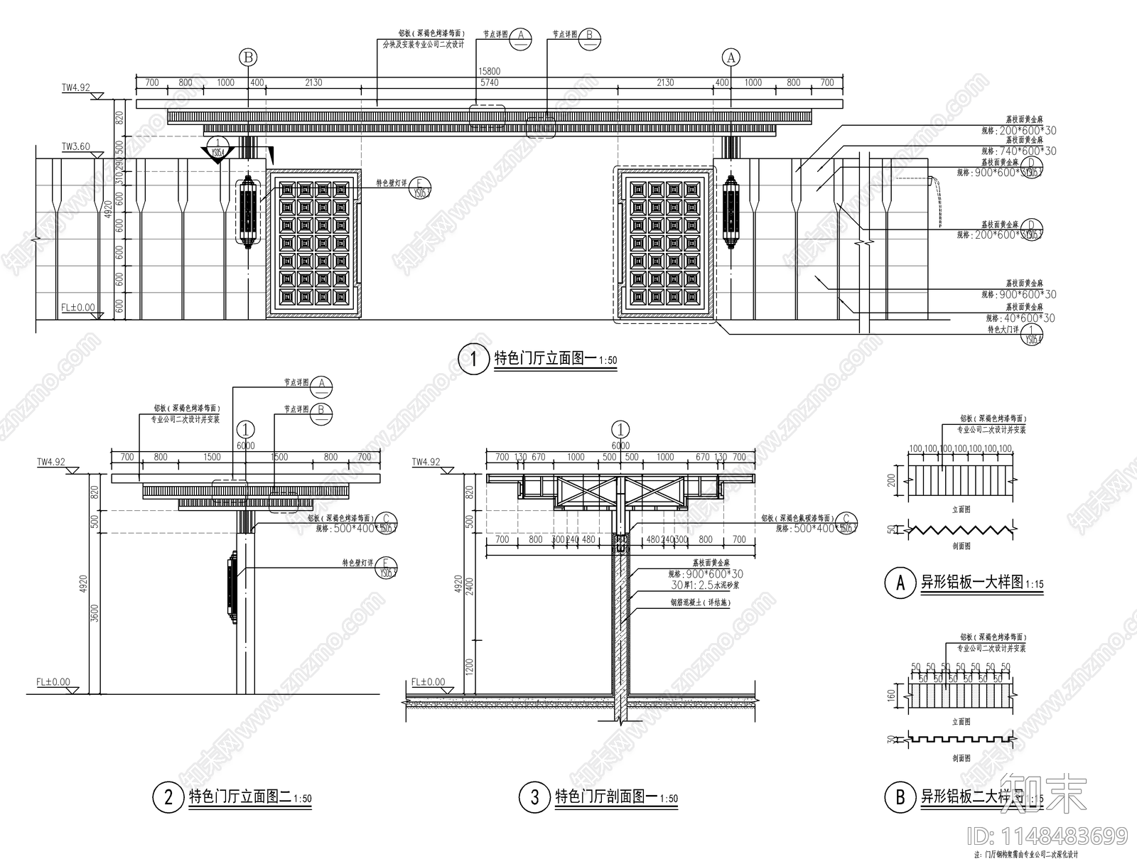
新中式景观小区入口大门门楼节点CAD下载
ID: 1148483699
复制
上传作者
labububbbbb
labububbbbb上传时间2023-11-20
文件大小0.98M
设计风格:现代简约
CAD版本:CAD2014
包含文件:CAD
授权普通
立即下载
收藏
分享
举报
相关推荐
综合
公共空间
门头
其他公共空间
公共卫生间
宿舍
服务中心
活动中心
会展
母婴室
档案室


labububbbbb上传时间2023-11-20
文件大小0.98M
设计风格:现代简约
CAD版本:CAD2014
包含文件:CAD
授权普通