
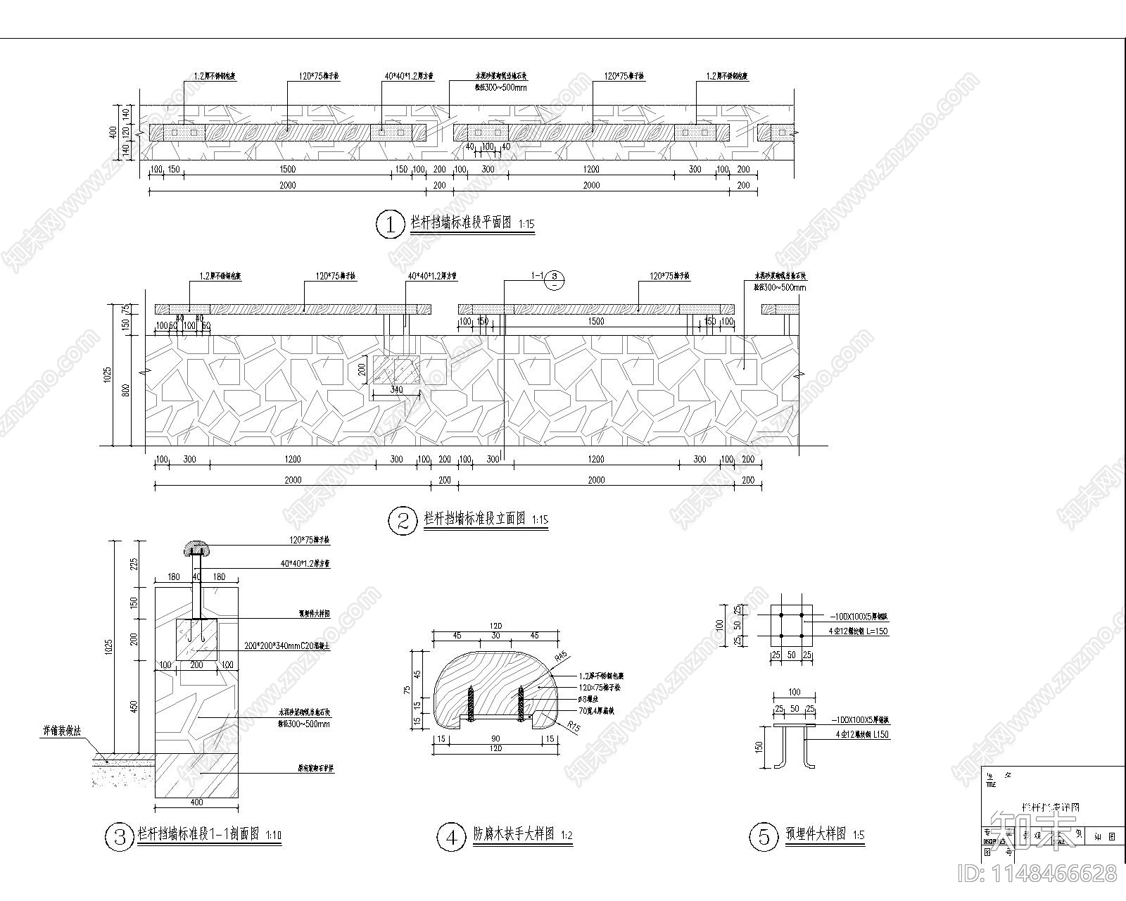
浆砌石挡土墙详图CAD下载
ID: 1148466628
复制
上传作者
爱吃甜食的画图酱~
爱吃甜食的画图酱~上传时间2023-11-20
文件大小0.29M
设计风格:现代简约
CAD版本:CAD2004
包含文件:CAD
授权独家
立即下载
收藏
分享
举报
相关推荐
综合
景观小品
挡土墙
亭子
廊架
景墙
综合景观小品
雨棚
围墙
入口
景观坐凳

爱吃甜食的画图酱~上传时间2023-11-20
文件大小0.29M
设计风格:现代简约
CAD版本:CAD2004
包含文件:CAD
授权独家