1/10


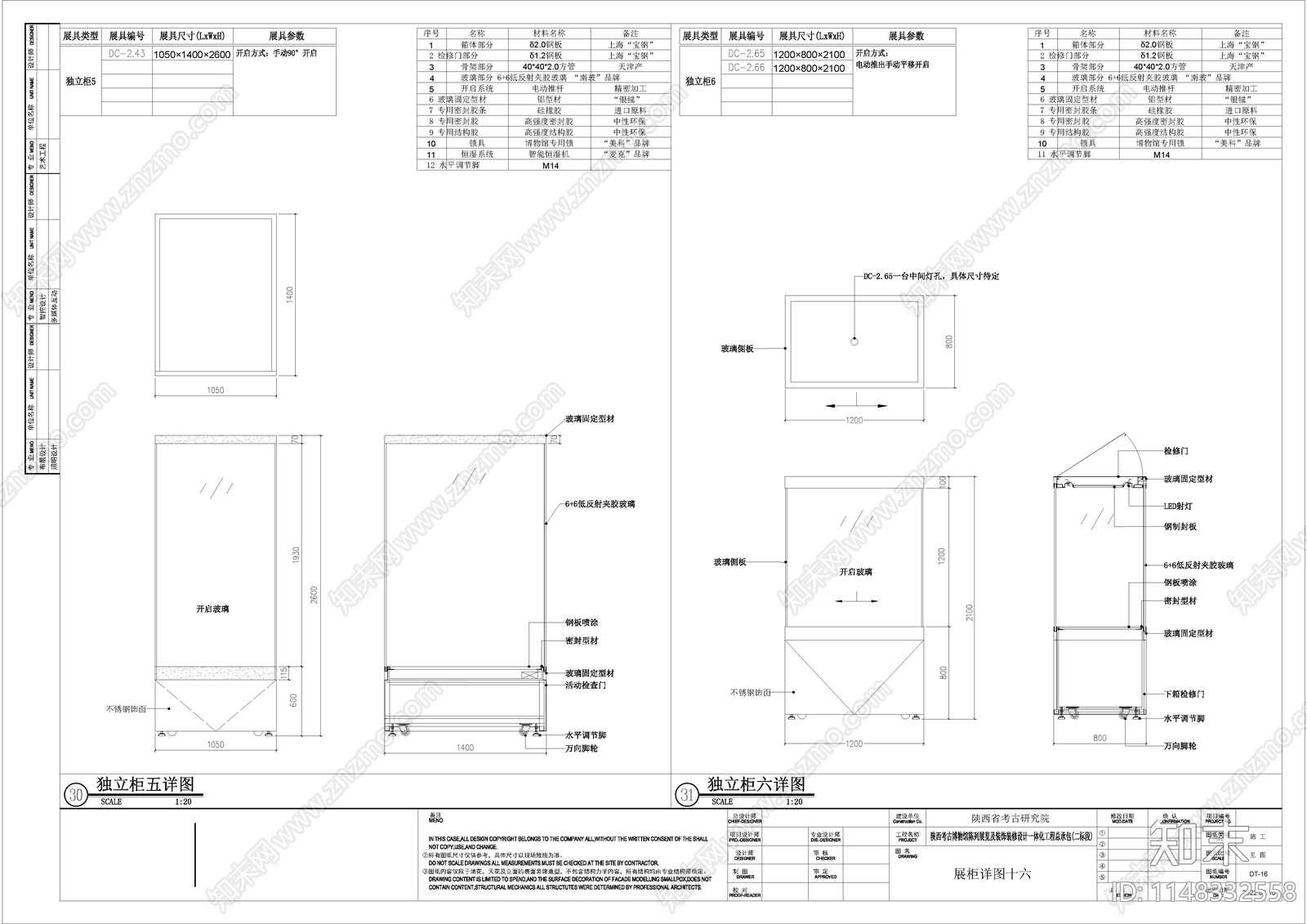
博物馆展柜节点CAD下载
ID: 1148332558
复制
上传作者
十八年窖藏
十八年窖藏上传时间2023-11-18
文件大小14.94M
设计风格:现代简约
CAD版本:CAD2007
包含文件:CAD
授权独家
立即下载
收藏
分享
举报
相关推荐
综合
文化建筑
博物馆建筑
图书馆建筑
体育馆建筑
美术馆建筑
游泳馆建筑
教堂
其他文化建筑


十八年窖藏上传时间2023-11-18
文件大小14.94M
设计风格:现代简约
CAD版本:CAD2007
包含文件:CAD
授权独家