CAD频道
CAD图库
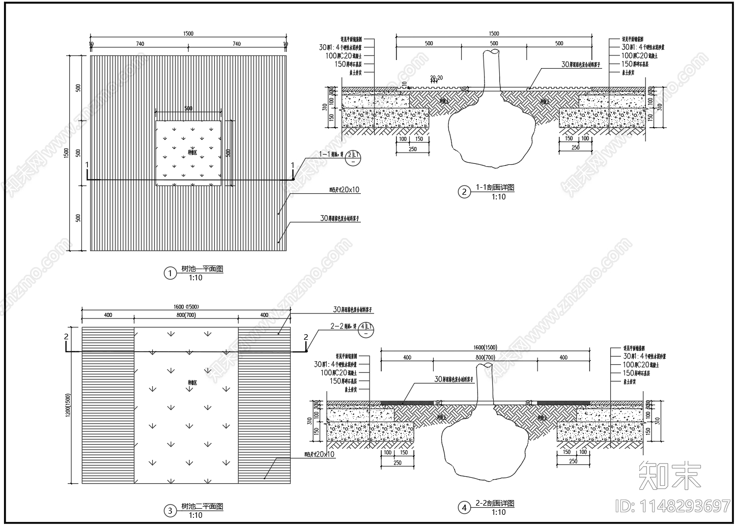
方形树池树篦子节点 施工图
1/
2
Previous
Next
方形树池树篦子节点CAD下载
ID: 1148293697
复制
上传作者
上善若水
上传时间
2023-11-17
文件大小
0.29M
设计风格:
现代简约
CAD版本:
CAD2016
包含文件:
CAD
授权
独家
立即下载
收藏
分享
举报
相关推荐
综合
景观小品
树池
亭子
廊架
景墙
综合景观小品
雨棚
围墙
挡土墙
入口