1/5


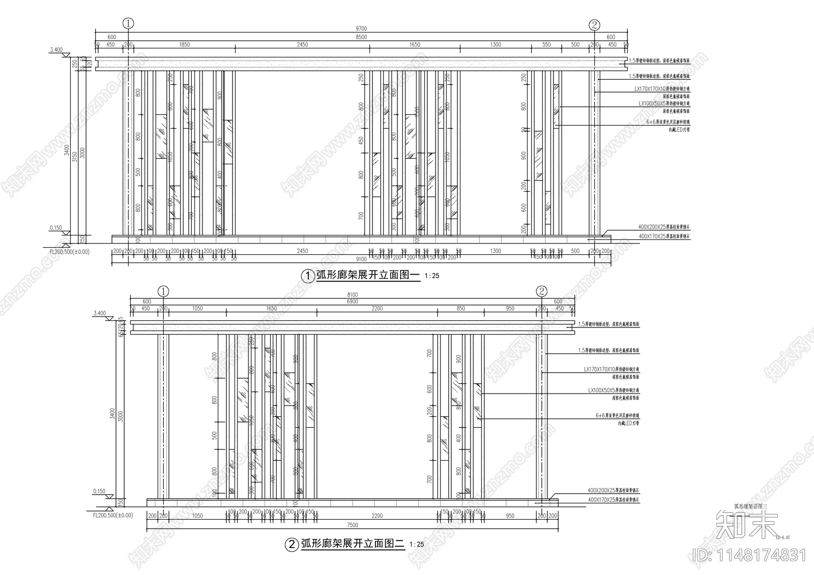
新中式钢结构铝板弧形廊架节点CAD下载
ID: 1148174831
复制
上传作者
labububbbbb
labububbbbb上传时间2023-11-16
文件大小0.67M
设计风格:现代简约
CAD版本:CAD2014
包含文件:CAD
授权普通
立即下载
收藏
分享
举报
相关推荐
综合
景观小品
廊架
亭子
景墙
综合景观小品
雨棚
围墙
挡土墙
入口
景观坐凳


labububbbbb上传时间2023-11-16
文件大小0.67M
设计风格:现代简约
CAD版本:CAD2014
包含文件:CAD
授权普通