CAD频道
CAD图库
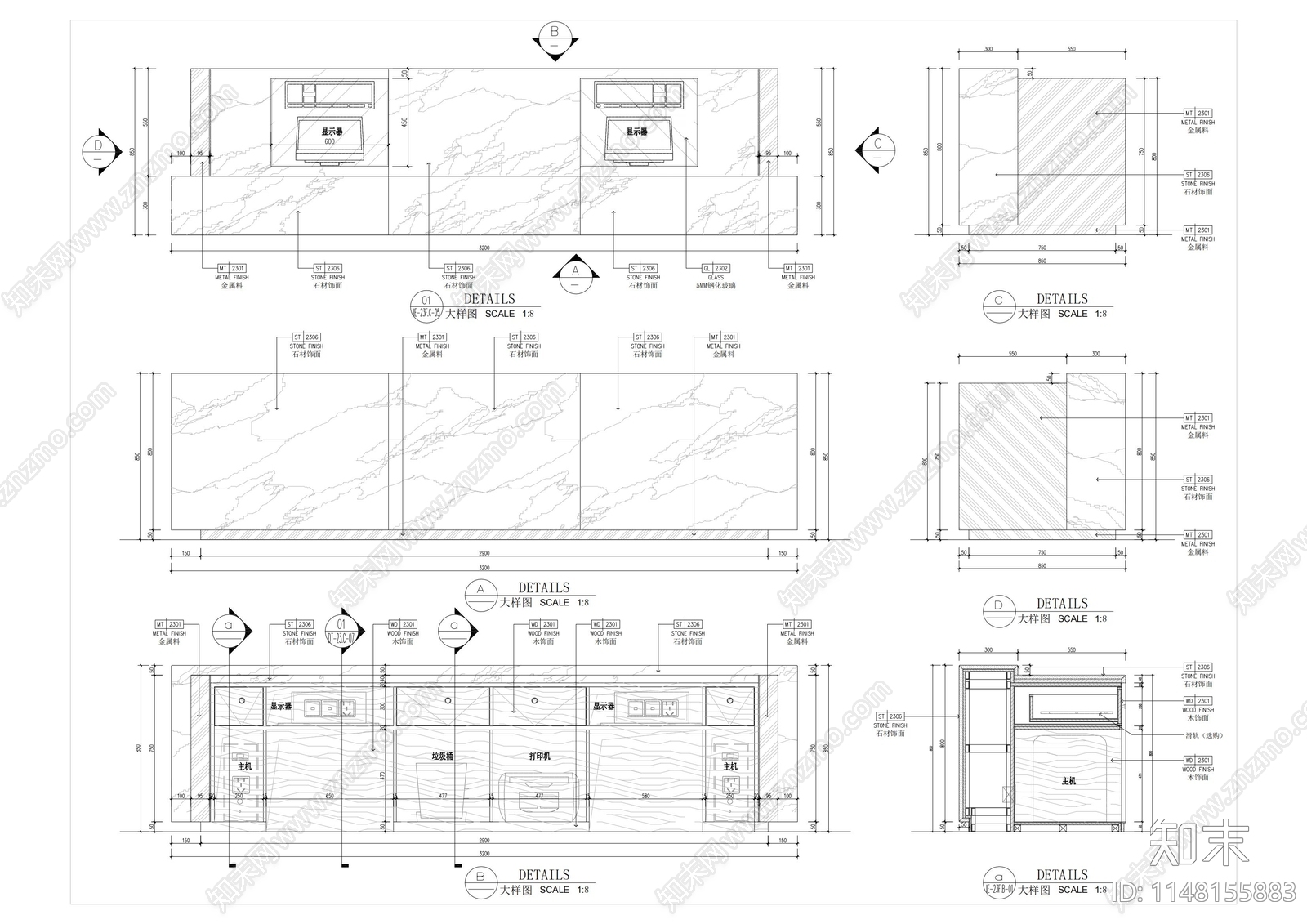
酒店服务台节点 施工图 前台 家具节点详图
1/
2
Previous
Next
酒店服务台节点CAD下载
ID: 1148155883
复制
上传作者
CCCL
上传时间
2023-11-16
文件大小
0.87M
设计风格:
现代简约
CAD版本:
CAD2004
包含文件:
CAD
授权
独家
立即下载
收藏
分享
举报
相关推荐
综合
家具节点详图
前台节点
吧台节点
壁炉节点
柜体节点
卡座节点
综合家具节点