1/2


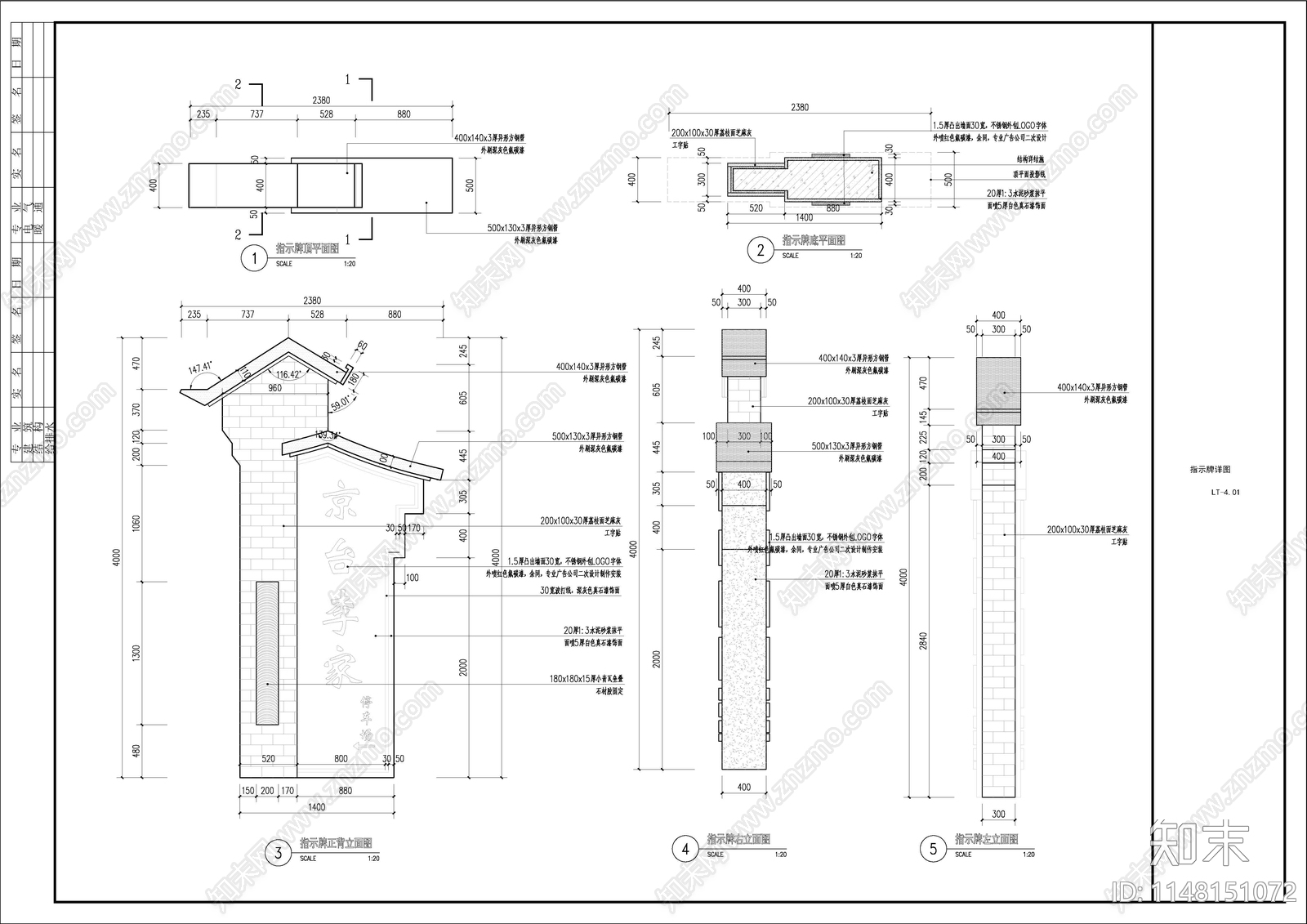
美丽乡村新农村标识牌青砖村牌节点CAD下载
ID: 1148151072
复制
上传作者
仙女下凡尘
仙女下凡尘上传时间2023-11-15
文件大小0.37M
设计风格:现代简约
CAD版本:CAD2014
包含文件:CAD
授权独家
立即下载
收藏
分享
举报
相关推荐
综合
景观小品
标识
亭子
廊架
景墙
综合景观小品
雨棚
围墙
挡土墙
入口


仙女下凡尘上传时间2023-11-15
文件大小0.37M
设计风格:现代简约
CAD版本:CAD2014
包含文件:CAD
授权独家