1/5


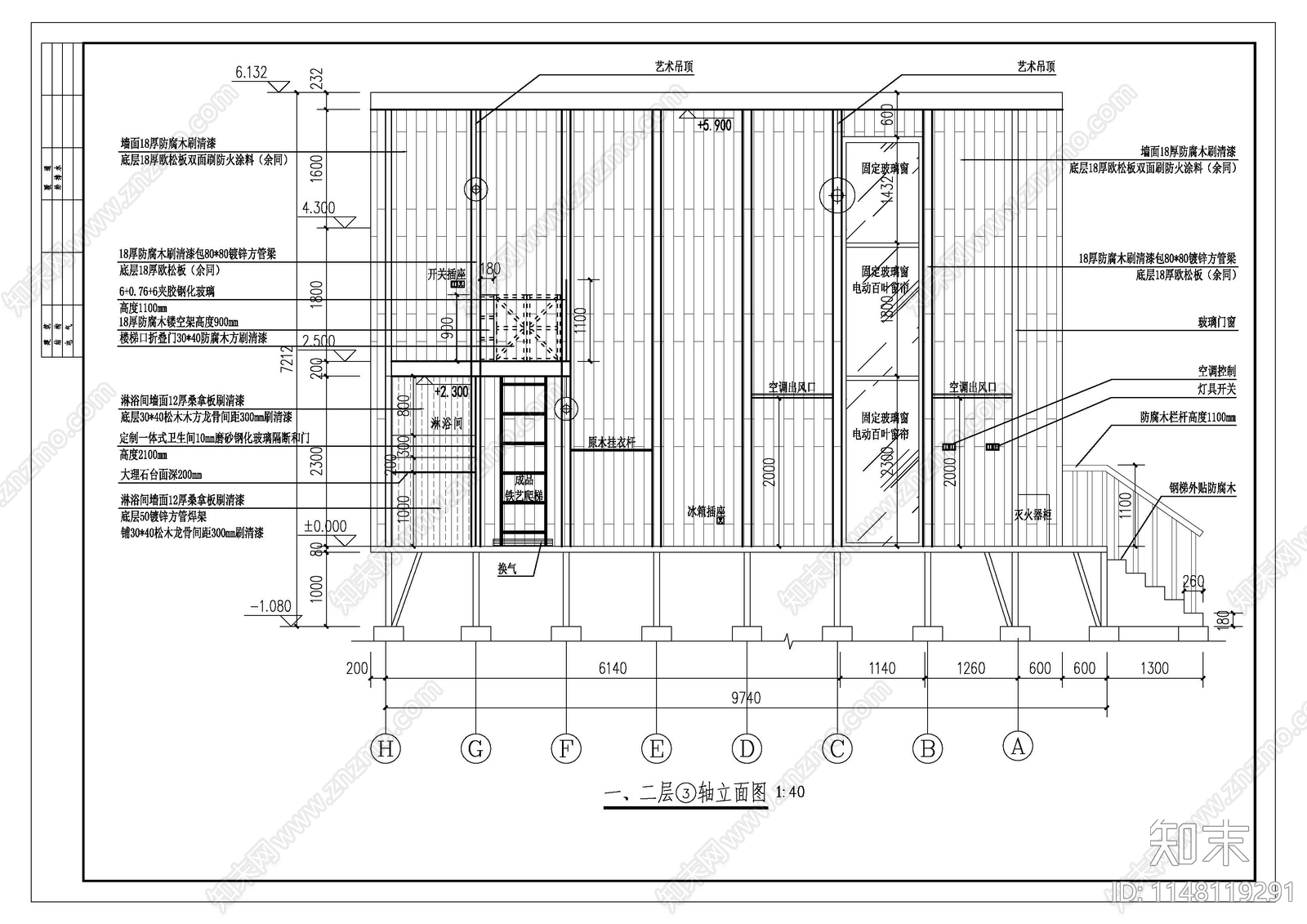
民宿三角树屋景观住宿装饰装修建筑CADCAD下载
ID: 1148119291
复制
上传作者
41557067
41557067上传时间2023-11-15
文件大小3.15M
设计风格:现代简约
CAD版本:CAD2014
包含文件:CAD
授权独家
立即下载
收藏
分享
举报
相关推荐
综合
公园景观
露营
儿童公园
口袋公园
滨水公园
体育公园
湿地公园
其他公园景观
综合性公园
公园主入口空间


41557067上传时间2023-11-15
文件大小3.15M
设计风格:现代简约
CAD版本:CAD2014
包含文件:CAD
授权独家